22,100,000 日元
超市 西友西荻洼商店 400m
公园 西荻洼和平儿童快乐园 400m
其他便利设施1 西荻洼站(JR东日本中央本线) 240m
其他便利设施2 Lawson西荻洼站北店 150m
其他便利设施3 7-Eleven西荻洼站北口店 240m
[带租约的房子房源]
0每月费用租金收入:120,000日元(包含公益金)
0押金:120,000日元
0表面回报率:5.0%
0契约期间(普通租借):2025/7/19-2027/7/18
■ 交通 ━━━━━━━━━
0JR中央线、总武线"西荻洼"车站步行3分钟
■ 房屋概要 ━━━━━━━━━
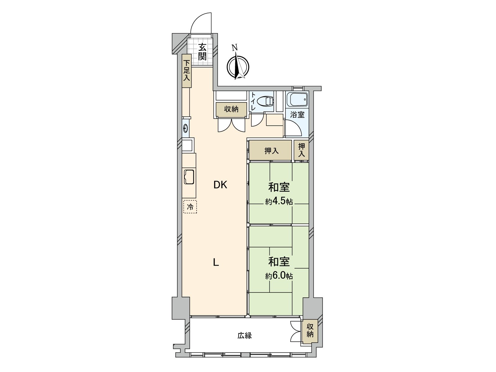
0实际使用面积:58.39平米(约17.66坪)
09层的4楼部分朝南住戸
0房型:2DK
■也把自己的家的"出售"交给三井Rehouse请
・虽然是否是否"出售是以前买房是以前"想重新购买可是不知道是否最好开始什么。
・想把握拥有房地产的行情。
・因为剩下自己的家的住宅贷款所以想谈无勉强的资金计划。
同顾客的情形相适应,合计,从住在的买房到出售,支援。
首先,在免费热线,请命令拥有房地产的概要。
※以首都圏为中心,也承受关于杉并区周围以外的房地产的出售的需讨论。
(因为有不能够办理的居住地所以请谅解)
查看评论 收起
地址 东京都杉并区西荻北2丁目