南16条西10丁目独栋住宅

独栋住宅

外观 外观照片

客厅 ※图片,在实际的室内照片以及户型平面图的基础上,是在CG重新显现的"空房形象",并且多少和实际不一样。

客厅 ※图片,在实际的室内照片以及户型平面图的基础上,是在CG重新显现的"空房形象",并且多少和实际不一样。

客厅 ※图片,在实际的室内照片以及户型平面图的基础上,是在CG重新显现的"空房形象",并且多少和实际不一样。

厨房 厨房

厨房 厨房

室内 ※图片,在实际的室内照片以及户型平面图的基础上,是在CG重新显现的"空房形象",并且多少和实际不一样。

洗脸 盥洗台

厕所 厕所

公共汽车 公共汽车

客厅 ※图片,在实际的室内照片以及户型平面图的基础上,是在CG重新显现的"空房形象",并且多少和实际不一样。

室内 ※图片,在实际的室内照片以及户型平面图的基础上,是在CG重新显现的"空房形象",并且多少和实际不一样。

室内 西式房间

其他内省 3楼礼堂

门口 门口

门口 门口

外观

外观

门口 门口

门口 门口

停车场 停车场

外观 外观照片

含有前面道路的外观 前面道路

含有前面道路的外观 前面道路

含有前面道路的外观 前面道路

含有前面道路的外观 前面道路

山鼻子小学(约370m)

柏中学(约1340m)

16条raruzumato店(约350m)

山鼻子公园(约220m)

16条TSURUHA药品南店(约270m)

Lawson札幌南17条西店(约300m)

山鼻子东屯田通邮局(约450m)

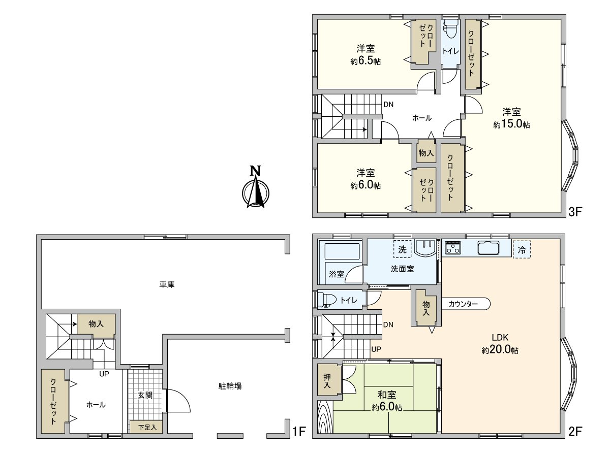
房型图
> 用语集

用语集

推荐

查看评论 收起

周边地图

地址 北海道札幌市中央区南十六条西10丁目


咨询方式
咨询方式
咨询方式
咨询方式