东久留米市中央町5丁目独栋住宅

独栋住宅

外观 为房源也与室内外面在建筑的築浅邸宅在2022年8月相似完,有而使用。

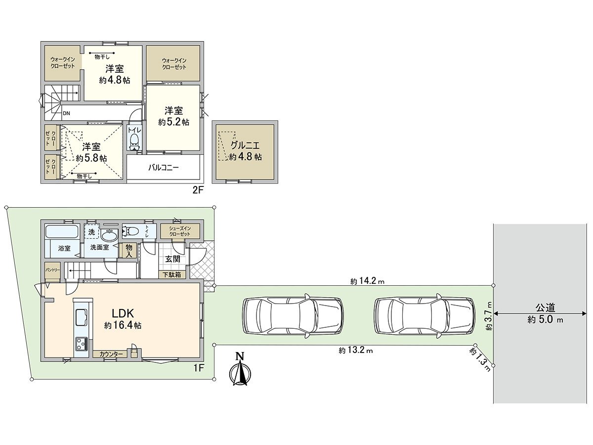
客厅 家族聚集的LDK有约16.4张塌塌米面积。

厨房 是一边烹调,一边能瞭望客厅的开放式厨房。

客厅 存储空间丰富,小孩的玩具以及学习用品整理,家族能舒畅的LDK♪

门口 有走入式鞋柜,并且一下子切门口,整理。

厕所 是有干净的感的亮的装修的厕所空间。

外观 到小学、中学,便于步行约6分钟的范围以内和上学,并且也在育儿家庭是安心的所在地。

外观 在用地里,也正确保停车位,也正支持蜷曲者如果。

外观 位于高的建筑物在周围没有的安静,安稳的住宅区。

外观 有私人的感的平稳的居住环境为深处的位置从道路是魅力。

AEON东久留米商店(约1200m)

西友泷山店(约800m)

都立六仙公園(约550m) 步行10分钟。有能悠闲自在地渡过的草坪广场以及拥有玩具的广场,能春天享用也樱。作为散步套餐以及孩子的娱乐场所推荐。

东久留米市立第一小学(约450m)

东久留米市立中央中学(约300m)

家庭型的4LDK!如果在1楼,家族自然聚集的约16.4张塌塌米的亮的LDK以及水周围正解决,家务流迹线也顺利。是家族团聚的时间和自己的时间的能两个都珍惜的房型。
> 用语集

用语集

推荐

查看评论 收起

周边地图

地址 东京都东久留米市中央町5丁目


咨询方式
咨询方式
咨询方式
咨询方式