51,400,000 日元
小学 冢越小学 470m
中学 东中学 650m
公园 风景树4丁目公园 60m
医院 西川口诊所 500m
其他便利设施1 Lawson蕨冢越6丁目商店 290m
其他便利设施2 杉药房上青木商店 500m
其他便利设施3 永旺TOWN蕨 750m
■ 推荐焦点━━━━━━━━━━━━━━━・・・・・
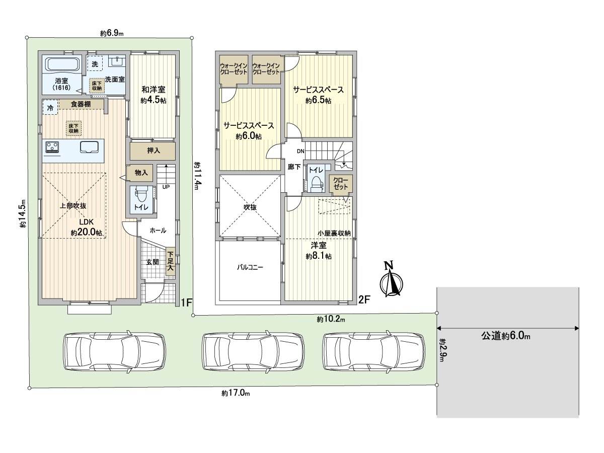
○ 2021年6月築的築浅独栋住宅
○ 停车位3台分有(出自车型的)
○ JR京滨东北/根岸线"西川口"车站步行15分钟
○ 有楼梯井的采光重视的亮的LDK
○ 约20张塌塌米宽敞的LDK
○ 步入式衣帽间收纳丰富的房型
■ 设备・设计━━━━━━━━━━━━━━━・・・・・
○ 开放式厨房
○ 组合厨房
○ 地板下边收纳
○ 浴室换气干燥机
○ 步入式衣帽间
○ 复数层玻璃
■ LIFE信息━━━━━━━━━━━━━━━・・・・・
○ 冢越小学/约470m(步行6分钟)
○ 东中学/约650m(步行9分钟)
○ 食物Square Kasusmi川口前川商店/约500m(步行7分钟)
○ THE BIG-A川口上青木西1丁目商店/约600m(步行8分钟)
○ 风景树4丁目公园/约60m(步行1分钟)
○ 青木町公园/约220m(步行3分钟)
○ 西川口诊所/约500m(步行7分钟)
○ Lawson蕨冢越6丁目商店/约290m(步行4分钟)
○ 杉药房上青木商店/约500m(步行7分钟)
○ 永旺TOWN蕨/约750m(步行10分钟)
查看评论 收起
地址 埼玉县蕨市冢越7丁目