46,900,000 日元
小学 上青木南小学 580m
中学 上青木中学 700m
超市 小Coop天神桥商店 330m
-房源的推荐焦点-
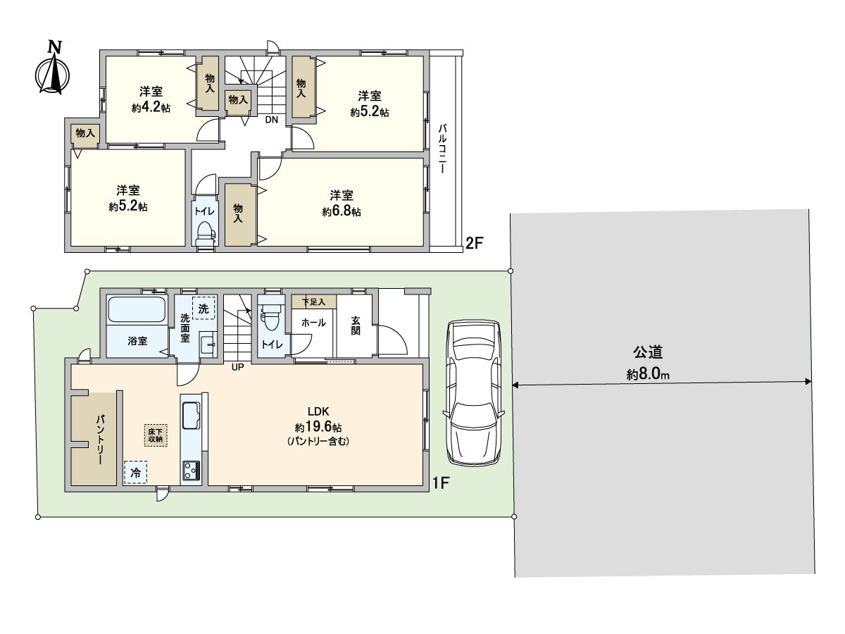
▼建筑物的特徴
・2层楼木造、4LDK
・有停车位※有出自车型的限制
・停车也前面道路幅员约8.0m顺利
▼房间的特徴
・便于食品以及日用品的收藏的餐具室有
・约19张塌塌米宽敞的LDK
▼设备
・开放式组合厨房
・全居室收纳有
■ 在找想要的家方面给予帮助的━━━━━・・・
房源的详细、需讨论是如有意向,请跟我们联系。
查看评论 收起
地址 埼玉县川口市上青木3丁目