37,800,000 日元
小学 清濑市立清濑第7小学 860m
中学 清濑市立清濑第2中学 1540m
超市 OK清濑商店 390m
公园 清濑中央公园 780m
医院 井上内科诊所 280m
其他便利设施1 7-Eleven清濑站南口店 390m
其他便利设施2 Lawson商店100清濑松山店 310m
其他便利设施3 COCOKARA FINE清濑商店 360m
■ 推荐焦点----------・・・・・
○有头班车的"清濑站"步行6分钟
○平坦到车站接近
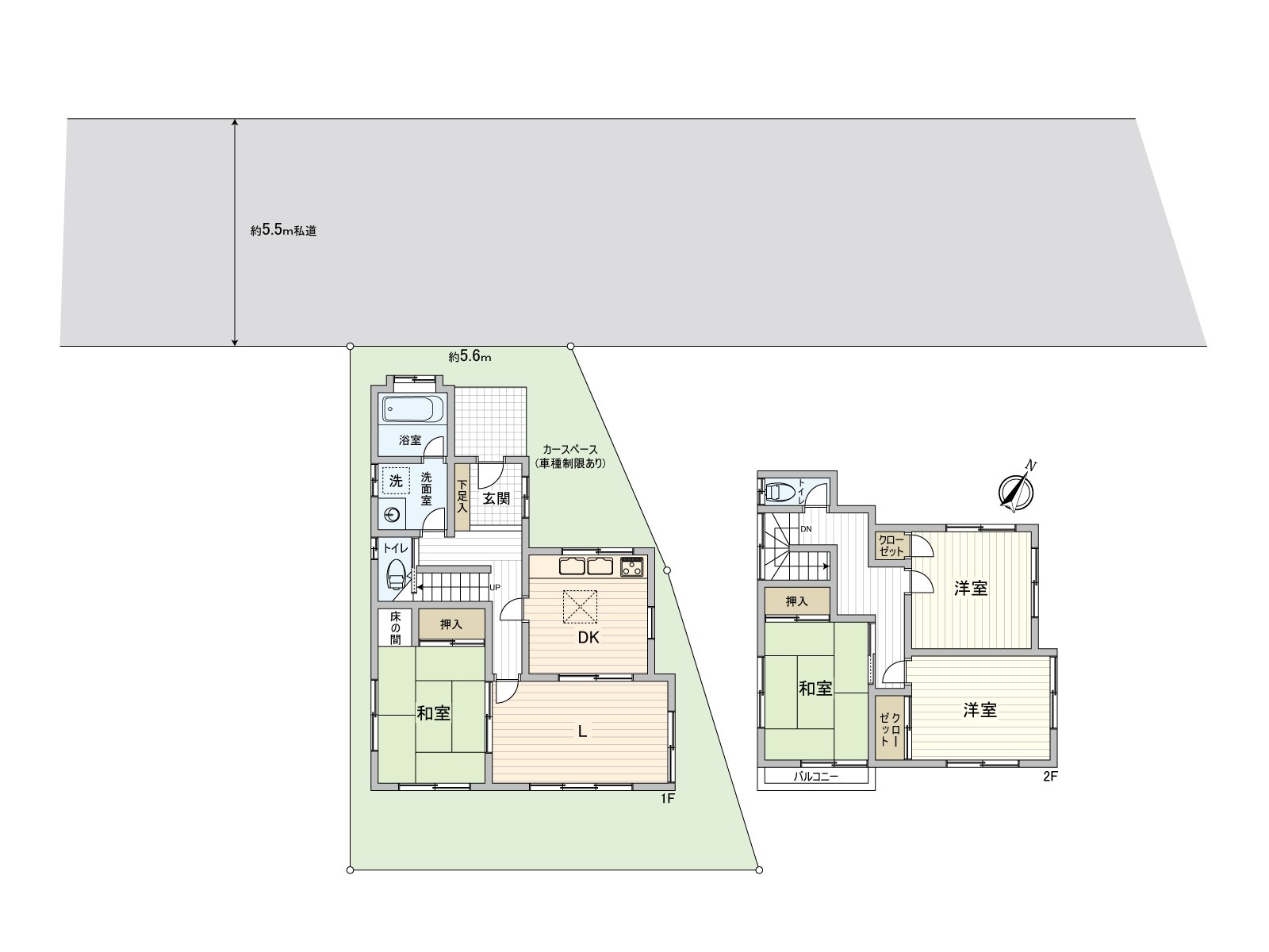
○前面道路幅员约5.5m
○土地103平米
○建筑面积比60%,容积率200%
○建筑物约97平米、4DK
○从属于汽车空间(有出自车型的限制)
■ 交通-------------・・・・・
○西武池袋线"清濑"车站步行6分钟
○西武新宿线"久米川"车站公共汽车25分"松山2丁目"停歩4分
■ LIFE信息--------・・・・・
○市立清濑第7小学步行11分钟(约860m)
○市立清濑第2中学步行20分钟(约1540m)
○OK清濑商店步行5分钟(约390m)
○西友清濑商店步行7分钟(约500m)
○7-Eleven清濑站南口店步行5分钟(约390m)
○COCOKARA FINE清濑商店步行5分钟(约360m)
○井上内科诊所步行4分钟(约280m)
○公益财团法人结核预防会复数十字形医院步行9分钟(约710m)
○清濑中央公园步行10分钟(约780m)
查看评论 收起
地址 东京都清濑市松山2丁目