24,800,000 日元
小学 川口市立领土家小学 310m
中学 川口市立领土家中学 460m
超市 共MODI饭田东领家商店 830m
公园 领土家第6公园 450m
医院 河合医院 350m
其他便利设施1 Lawson川口领土家中央商店 310m
其他便利设施2 Welcia川口领土家店 270m
流理台(厨房)更换 浴室更换 厕所更换 盥洗台交换 热水器交换 门交换
纱门张替,窗帘横杆交换,开关插座交换,附带TV监视器的内部对讲机交(2025年5月),计划 , 计划外装(外壁,屋顶)(2025年5月) , 计划水运转(厨房,浴室,厕所,洗手间,热水供应器)(2025年5月), 计划内装(墙,门)(2025年5月)
-房源的推荐焦点-
▼位置
・埼玉高速铁道"川口元乡站"步行24分钟
或者公共汽车7分"领土家小学背后"停歩5分
▼建筑物的特徴
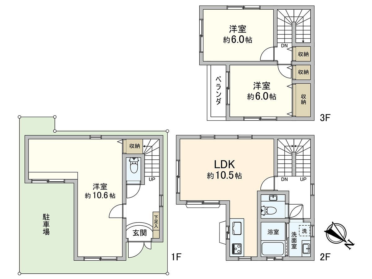
・建筑面积88.89平米(约26.88坪)
・土地面积57.24平米(约17.31坪)
・超过6张塌塌米各居室
・停车位1台分有(车型限制有)
▼翻新内容(2025年5月实施)
・外壁涂抹
・屋顶涂抹
・组合厨房交换
・厨房面板交换
・盥洗台交换
・热水供应器以及热水供应器遥控交换
・墙和天花板的Cross张替(所有房间)
・纱门张替
・窗帘横杆交换
・开关插座交换
・厕所马桶座交换,卫生纸架交换,毛巾架交换,换气扇交换(1F、2F)
・浴室的入口门交换
・浴室的换气扇交换
・门交换(LDK部分)
・附带TV监视器的内部对讲机交换
▼翻新内容(2025年7月实施)
・大门交换
・邮筒交换
・门口的钥匙交换
■在找想要的家方面给予帮助的━━━━━・・・
房源的详细、需讨论是如有意向,请跟我们联系。
查看评论 收起
地址 埼玉县川口市领家3丁目