145,800,000 日元
小学 文京区立柳町小学 800m
中学 文京区立茗台中学校 340m
超市 Santoku茗荷谷商店 360m
医院 3桥医院 290m
其他便利设施1 MINISTOP茗荷谷商店 260m
其他便利设施2 在7-ELEVEn文京植物园的前面的商店 500m
其他便利设施3 SUGI药品茗荷谷商店 580m
■ 交通━━━━━━━━━━━━━━━・・・
○ 东京Metro丸之内线"茗荷谷"车站步行11分钟
■ 房源的特徴━━━━━━━━━━━━━━━・・・
○ 2026年5月下旬完成计划的新建住宅
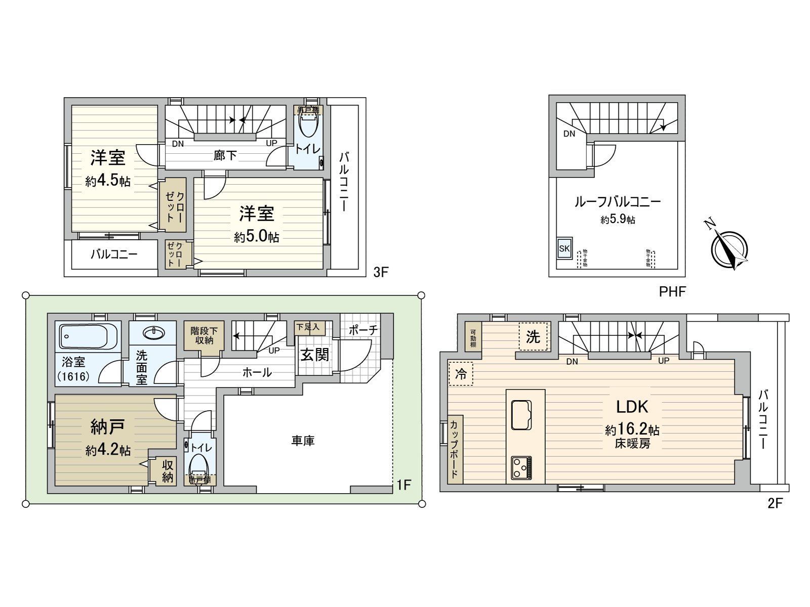
○ 91.51平米(车库地面面积10.58平米,PH地面面积3.72平米)
含有o的)
2SLDK(S储藏室)
○ 附带照相机的视频门禁对讲机设置
○ 所有房间复数层玻璃
○ 在9.80平米的屋顶阳台,洗手台的
○ 在门口,从属于便利的人感觉Center右外场手
○ 客厅和有一体感的开放式厨房(附带餐具冲洗烘干机)
○ 对客厅以及厨房部分地板暖气设置
○ 收纳力的高的壁橱
○ 在1楼楼梯预先收纳有
○ 有再加热功能的1616尺寸的整体卫浴
○ 浴室防止扶手的,跌倒
○ 有窗,容易换空气,亮的浴室
○ 附洗手台厕所
○ 厕所是1楼和3楼的2个地方有
○ 人造大理完成的盥洗台
○ 感觉清醒,把化妆品以及洗脸用品类收藏在三面镜背后
○ 智能快递柜设置
※销售价格不包括CG建筑物外观的车辆。
■ 比负责人━━━━━━━━━━━━━━━━━━・・・・・
这次到房源详细看,表示衷心感谢。因为关于下列在内览之前甚至承受阶段所以欢迎来电早熟。
○ 房源的周边环境的向导以及说明
介绍小学以及中学,离得最近的超市或者公园。也转达看不见的居住地的信息。
○ 顾客专用的资金计划书的制作
事前除了需要的买房各种费用以外除了房源价格以外可以确认无勉强的贷款偿还数额。
○ 贷款预先判断的受理
实际上可以如愿以尝的贷款借款的不安能解除。另外,在同时地在期对一个房源要复数的买房申请了的时候,请对卖主作为如果贷款事情前承认正能够得到的话,能放心的对方认识,有能要合同的可能性高涨的优点。
查看评论 收起
地址 东京都文京区小石川4丁目