92,800,000 日元
小学 区立西小岩小学 770m
中学 区立小岩第4中学 1000m
超市 伊藤洋华堂小岩商店 110m
公园 西小岩1儿童快乐园 440m
其他便利设施1 全家便利店小岩站东店 30m
其他便利设施2 Create SD JR小岩站前店 120m
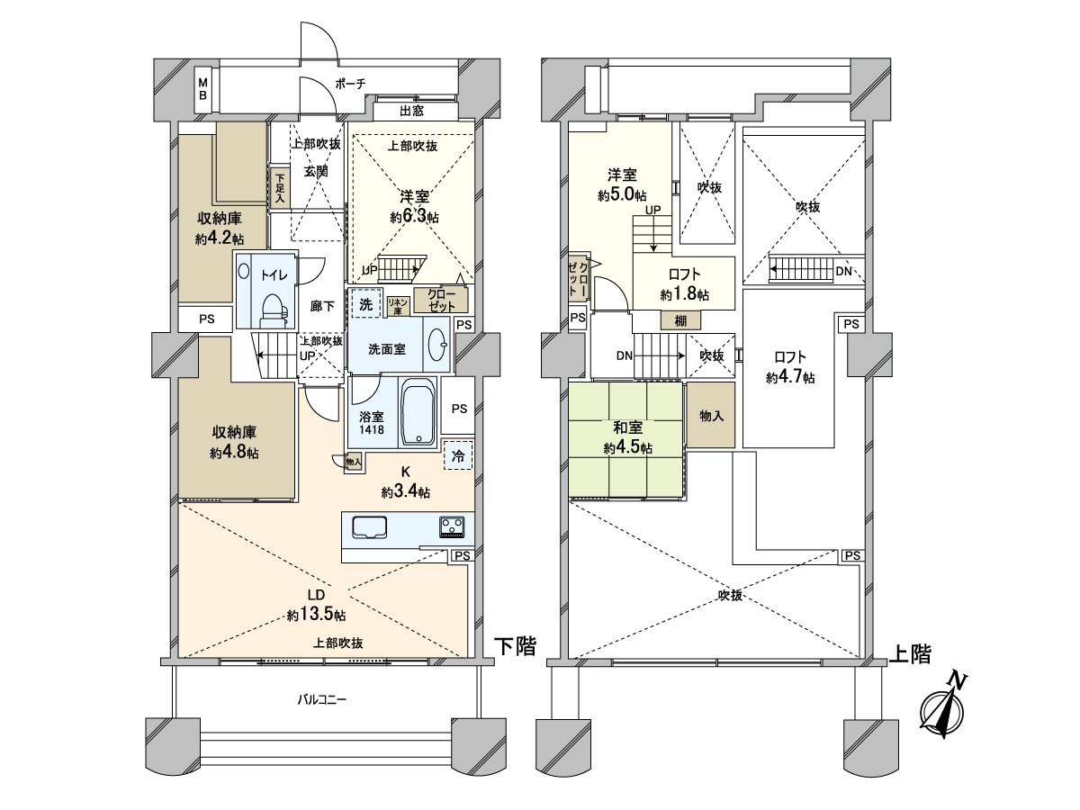
-房源的推荐焦点-
▼位置
・JR中央、总武缓行线"小岩"车站步行2分钟
▼特徴
・ 实际使用面积75.46平米/别墅
・ 朝南的/3LDK+2阁楼+2储藏室
・风景关于24层的23楼部分良好
・约3.6m的开放性的天花板高度(客餐厅部分)
・是有上部楼梯井,阳光明亮地好的房间
(门口、居室、客餐厅)
・ 6.07平米的玄关空间有
・ 2007年4月築
・ 183户总户数的大的地方自治团体
・ 入口和用电梯的双层防盗门系统
・ 可饲养宠物(饲养有特殊规则)、宠物足洗場有
▼设备
・ 客餐厅地板暖气
・ 浴室烘干机
・ 开放式厨房
・ 垃圾处理器
・ 浴缸再加热功能
・ 智能快递柜有
・ 附带TV监视器的内部对讲机
■ 在找想要的家方面给予帮助的━━━━━・・・
房源的详细、需讨论是如有意向,请跟我们联系。
查看评论 收起
地址 东京都江户川区西小岩1丁目