45,800,000 日元
小学 广岛市立井口小学 1040m
中学 广岛市立井口中学 1600m
超市 aruzo井口台商店 1060m
公园 铃是台第一公园 300m
其他便利设施1 7-Eleven广岛井口4丁目商店 520m
其他便利设施2 广岛井口西邮局 500m
■推荐焦点━━━━━━━━━━━━━━━・・・・・
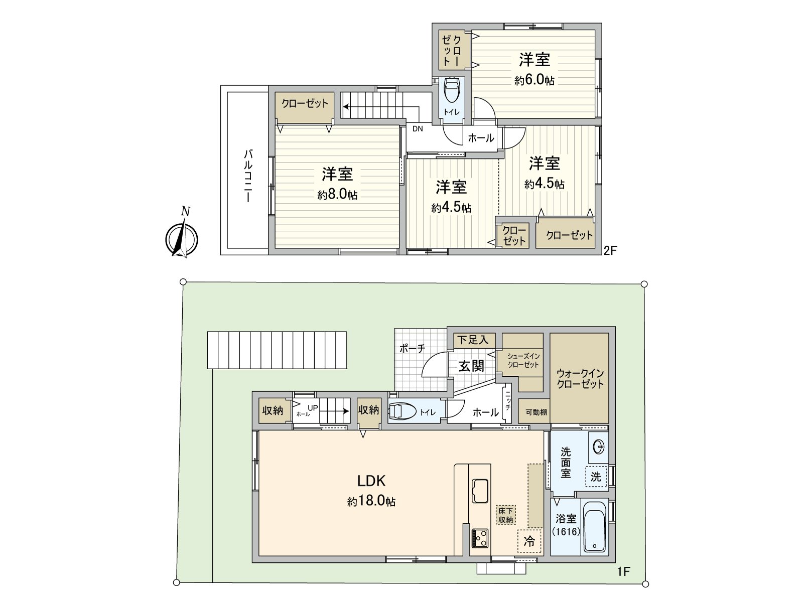
0断热消费性能等级4以及一次能源的级别6
04LDK的独栋住宅宽敞的约18张塌塌米LDK
0收藏步入式鞋柜或者步入式衣帽间,充实
0浴室舒适地是1坪类型
0约8.0张塌塌米主卧室
0灵活作为变更可能的房型
0生活便利设施充实
0清静的住宅区
查看评论 收起
地址 广岛县广岛市西区井口铃台3丁目