98,800,000 日元
■47层楼超高層免震Tower Mansion ―――――――――――――――
○ 可以JR、阪神、阪急的3WAY访问,并且是便利性的高的位置
○可饲养宠物[规章限制有]
○2010年1月建筑
○本Mansion南侧邻接地有商业设施"御像kurasse"
○绿、星期三/艺术调和的风景设计
○天花板高度约5.6m的有稳重的感的大厅入口
○365天24小时的有人的管理体制
■室内推荐焦点 ――――――――――――――――――――――
○四季各有特色的更换表情的六甲的緑景扩展到的风景
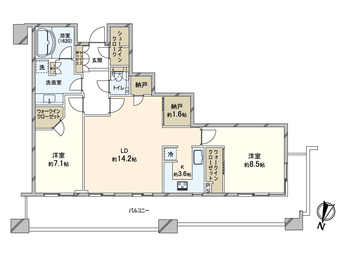
○阳光通风为西北、西南的边角房良好
○是约82平米/2LDK的宽敞的房型
○是北侧约13m的wide span阳台
○具有大容量的收纳[各西式房间WIC、储藏室*2.SIC]
○作为1620尺寸的宽敞的浴室[附带煤气式浴室烘干机]
○西式房间分别作为约8.5张塌塌米、约7.1张塌塌米的面积[各西式房间有WIC]
查看评论 收起
地址 兵库县神户市东滩区御影中町3丁目