上京区笹屋4丁目独栋住宅

独栋住宅 事前预约制参观会

外观 外观

含有前面道路的外观 包括前面道路在内的外观

外观 外观

含有前面道路的外观 包括前面道路在内的外观

含有前面道路的外观 包括前面道路在内的外观

外观 包括前面道路在内的外观

含有前面道路的外观 包括前面道路在内的外观

厨房 厨房

公共汽车 浴室

厕所 厕所

洗脸 洗脸

室内 1楼西式房间■销售对象不包括室内的家具供给品。

门口 门口

室内 1楼日式房间■销售对象不包括室内的家具供给品。

厨房 1楼DK■销售对象不包括室内的家具供给品。

北野白梅町站(京福北野线)(约950m)

圆町站(JR西日本山阴本线)(约2020m)

在7-Eleven京都上7家店(约260m)

在Koyo上7家店(约130m)

京都市立翔鸞小学校(约500m)

京都市立衣笠中学(约2100m)

西阵锦缎邮局(约390m)

京都银行西阵锦缎分店(约240m)

三菱UFJ银行西阵锦缎分店(约260m)

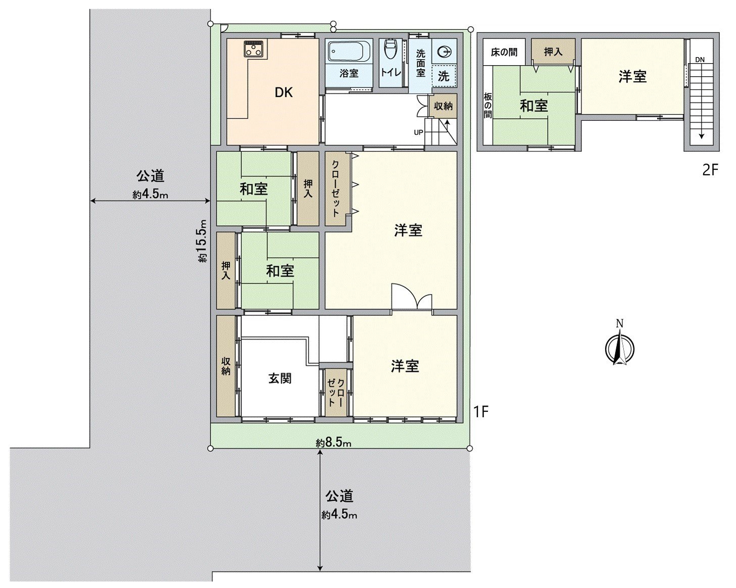
房型图
> 用语集

用语集

推荐

查看评论 收起

周边地图

地址 京都府京都市上京区笹屋町通千本西入笹屋4丁目


咨询方式 事前预约制参观会
事前预约制参观会 咨询方式
咨询方式