本山北町6丁目独栋住宅

独栋住宅

风景 在晴朗的日,能到关西国际机场看。

含有前面道路的外观 外观

含有前面道路的外观 外观

含有前面道路的外观 外观

含有前面道路的外观 外观

含有前面道路的外观 外观

外观

风景 开放性以及风景好的风景展现。是被对在每天的生活感到自然的环境。

风景 风景,通风良好。

风景 明亮地有解放感。

风景 一定一回请看来自房间的风景。

风景

冈本站(阪急神户本线)(约420m) 步行6分钟。

摄津本山站(JR西日本东海道本线)(约780m) 步行10分钟

Coop冈本(约430m) 步行6分钟。

美食城冈本商店(约730m) 步行10分钟。

本山第一小学(约560m) 步行7分钟。

神户市立本山中学(约1360m) 步行17分钟。

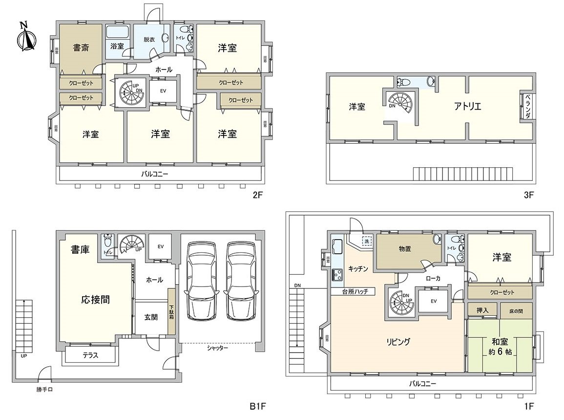
房型图
> 用语集

用语集

推荐

查看评论 收起

周边地图

地址 兵库县神户市东滩区本山北町6丁目


咨询方式
咨询方式
咨询方式
咨询方式