住吉山手1丁目新房独栋住宅1号地

独栋住宅 事前预约制参观会

客厅 正采用对墙(侧面),兼备设计性和功能性的环保克拉。

客厅 LDK是宽敞的约21.0张塌塌米。在阳光插进去的亮的空间,舒适地舒畅,能要。

客厅 LDK是宽敞的约21.0张塌塌米。在阳光插进去的亮的空间,舒适地舒畅,能要。

客厅 LDK是宽敞的约21.0张塌塌米。在阳光插进去的亮的空间,舒适地舒畅,能要。

厨房 厨房背面是收纳搁板。

厨房 是有洗碗机的开放式柜台厨房。

洗脸 是株式会社miratappu的时尚的盥洗台。

洗脸 是有宽敞的工作空间的盥洗台。

公共汽车 1616尺寸的宽敞的浴室有窗。

厕所 2楼厕所有便利的收纳搁板。

门口 是有窗的亮的门口。

门口 宽敞的门口有大型的鞋柜。

客厅 LDK是宽敞的约21.0张塌塌米。在阳光插进去的亮的空间,舒适地舒畅,能要。

客厅 正采用对墙(侧面),兼备设计性和功能性的环保克拉。

客厅 LDK是宽敞的约21.0张塌塌米。在阳光插进去的亮的空间,舒适地舒畅,能要。

厨房 厨房背面有丰富的存储空间。

外观 有停车位2台分。(出自车型的)

外观 是时尚的外观。

门口 是有用瓦盖的舒适的门口。

门口 是有板张力的气氛的门口。

洗脸 是回家以后便利的1楼盥洗台。

阳台 是阳光好的阳台。

其他内省 是便利的柜台桌子。

客厅 LDK是宽敞的约21.0张塌塌米。在阳光插进去的亮的空间,舒适地舒畅,能要。

客厅 LDK是宽敞的约21.0张塌塌米。在阳光插进去的亮的空间,舒适地舒畅,能要。

客厅 LDK是宽敞的约21.0张塌塌米。在阳光插进去的亮的空间,舒适地舒畅,能要。

室内 西式房间(约9.5张塌塌米)※含有步入式衣帽间

收纳 是大容量的步入式衣帽间。

室内 从属于在西式房间(约5.4张塌塌米),也能用于作品空间的柜台。

室内 西式房间(约5.4张塌塌米)

室内 从属于在储藏室(约5.4张塌塌米),也能用于作品空间的柜台。

室内 储藏室(约5.4张塌塌米)

厨房 是有洗碗机的开放式柜台厨房。

门口 是大容量的鞋柜。

含有前面道路的外观 柏油漂亮地是被铺的道路。

外观 有停车位2台分。(出自车型的)

洗脸 有收纳,是宽敞的洗脸室。

洗脸 是有宽敞的工作空间的盥洗台。

厕所 1楼厕所

含有前面道路的外观 柏油漂亮地是被铺的道路。

御影站(阪急神户线)(约1050m) 步行14分钟。

住吉站(JR东海道线)(约1040m) 步行13分钟。

住吉河(约150m) 步行2分钟。

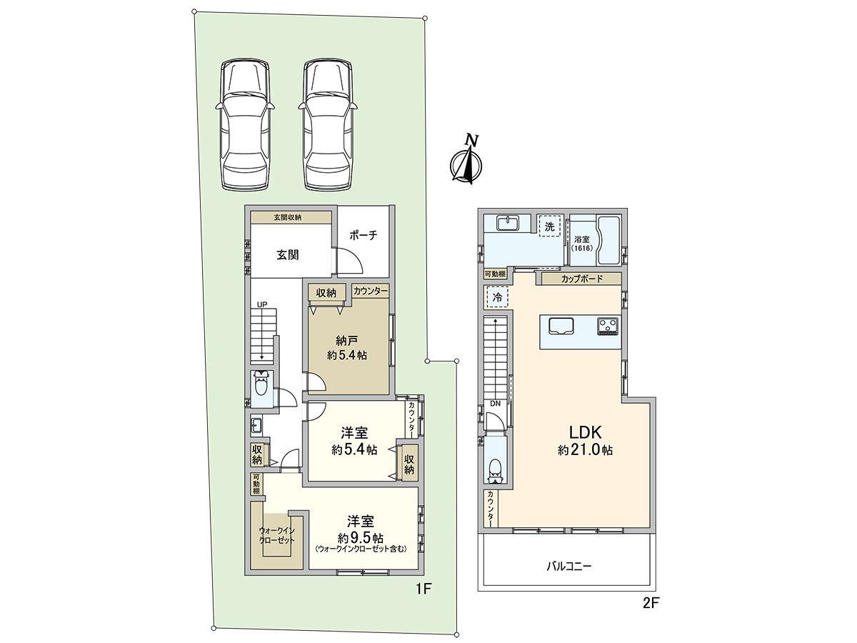
户型平面图
> 用语集

用语集

推荐

查看评论 收起

周边地图

地址 兵库县神户市东滩区住吉山手1丁目


咨询方式 事前预约制参观会
事前预约制参观会 咨询方式
咨询方式