639,800,000 日圓
■ 房間的特徴━━━━━━━━━━━━━・・・
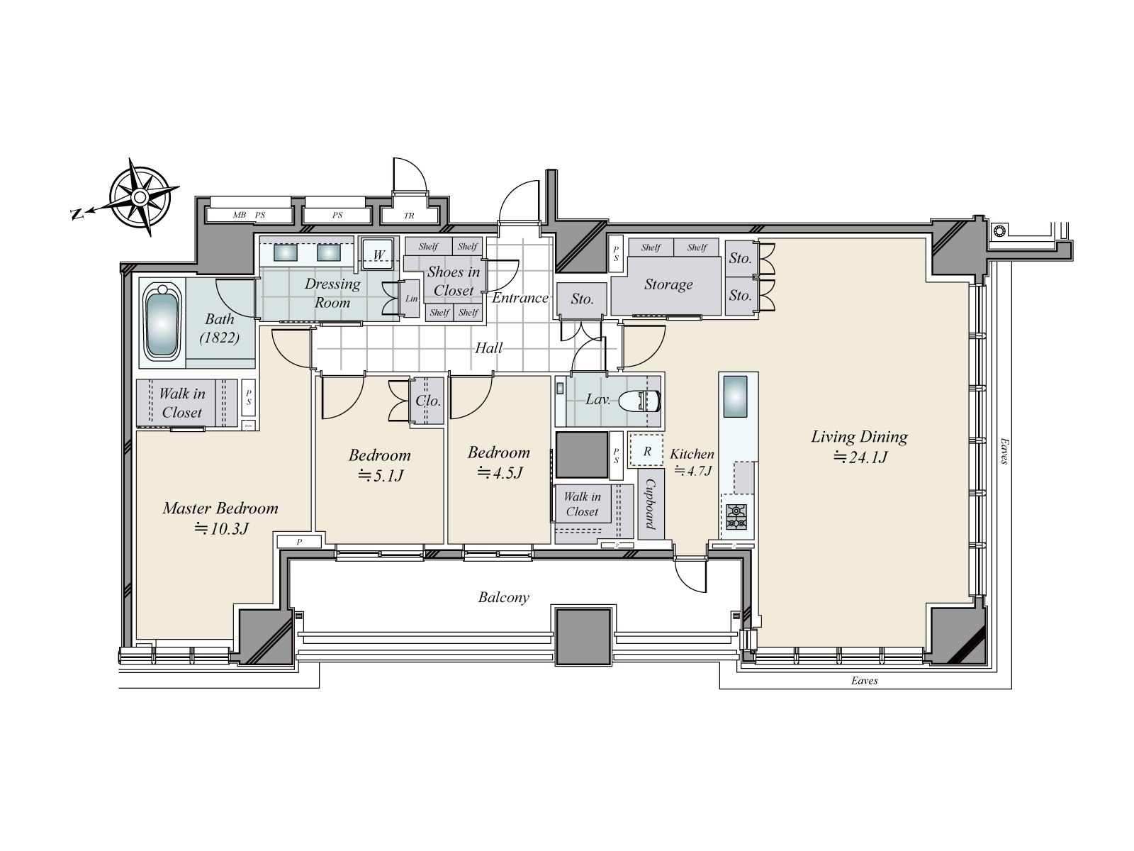
0 33樓部分117.07平方公尺
0 從客廳飯廳希望新宿御苑,明治神宮,赤坂御用地,國立競技場的風景
0 陽光、通風關於南、西採光房良好
0 約28.8張塌塌米寬敞的LDK
0 客餐廳,主卧室的最大天花板高度2,800mm
0 所有房間天花板嵌入式冷氣設置
0 在主卧室嵌入式衣櫃有
0 洗臉雙盆型
0 1822尺寸的浴室
0 所有房間開口部有
0 專用貯藏室有(0.66平方公尺)
0 減少高低差別的全部的Flat設計
■ Mansion的特徴━━━━━━━━━━━━━・・・
0 順便到住友商事、三菱地所住宅去
Tower Residence
0 24時間管理,禮賓服務
(部分收費)
0 宅配保管櫃有
0 寵物洗腳場有
0 在各層垃圾堆放處有
0 出自24小時在線安全系統的警務工作安排
0 3重安保系統
(防風林室~電梯間~各住戸玄関扉)
0 充實的共用設施
・Park View休息室(27樓)
・私人的休息室(27樓)
・皇家的沙龍(27樓)
0 雙重的地板、雙重天花板
■ 交通指南━━━━━━━━━━━━━━━━・・・
0 東京Metro丸之內線"新宿御苑前"車站步行4分鐘
0 東京Metro丸之內線"四谷三丁目"車站步行7分鐘
0 東京地鐵線副都心線"新宿三丁目"車站步行11分鐘
0 都營新宿線"新宿三丁目"車站步行11分鐘
0 都營大江戶線"國立競技場"車站步行13分鐘
0 JR中央總武緩行線"千馱木"車站步行15分鐘
查看評論 收起