小川2丁目透天房

透天房

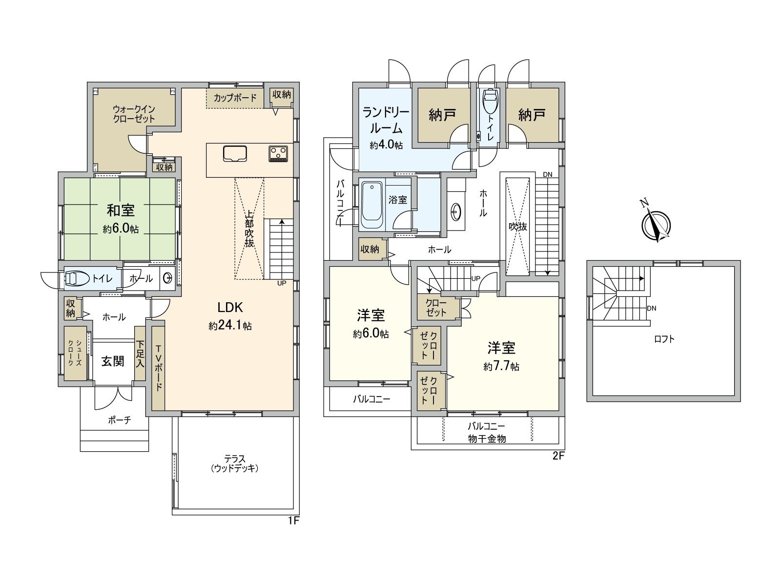
客廳 作為是家族休息的地方,并且招待來客的空間的客廳(約24.1張塌塌米)是是把通頂設計以及公開樓梯布置,并且開放感覺和明亮被上演,瀟灑的設計的空間

外觀 [外觀、停車場、院子]不僅停車場而且在作為光照良好度的本房屋在西南一側道路有眼罩面板以及木材甲板被設置的院子

院子 在附帶從客廳繼續的木材甲板的院子,外面栓被設置,享受園藝,作為露天咖啡館渡過雅致的時間,有在孩子以及寵物的娛樂場所做的各種各樣的用途

客廳 LDK的東南東采用通頂設計窗,能在朝日的明亮中生活。

客廳 地板采用Live天然Premium

客廳 [客廳]為全館地板暖氣系統和全館sarapoka空調系統(調整濕度以及空氣的循環)使用住宅,舒適的空氣夏天冬天一整年被房子裡幹爽啪嚓啪嚓提供

客廳 供投影機使用的銀幕以及音響設備被在天花板除了電視板之外在客廳,設置

廚房 廚房兼餐室的東南一側有大的窗以及通頂設計。用亮的餐廳的早餐,心情也變得亮

廚房 大的碗櫥、電磁爐、洗碗機、凈水器等的多種多樣的設備被設置。地板暖氣被設置,冬天舒適地享受菜以及點心製作

廚房 廚房天板以及碗櫥是光澤超過的式樣,并且也對設計性感到拘泥

卧室 地板暖氣也被在亮的約7.7張塌塌米主卧室用2面采光設置。不從被褥變得不想出來的冬天的早晨舒適的早晨變成嗎?

室內 用2面采光亮的約6.0張塌塌米西式房間。因為周圍的建築物二層樓所以感到光照的好處以及開放感覺

室內 榻榻米被配於黑白格相間的花紋的瀟灑的和式房間(約6.0張塌塌米)。在客廳和繼續之間做,但是是洗臉室,并且打開照片右側的門的話打開uo-kuinkurozetto,照片左側的門的話也被生活流跡線考慮

室內 [儲藏室]為有也作為在家的工作的房間可以靈活使用電插座

收納 作為把雛娃娃以及聖誕樹這樣的季節東西以及不可以斷捨離的回憶的東西放到的地方便利的有閣樓。為能夠本房屋在固定樓梯被找到,下去是重的東西容易拿進拿出的設計

洗臉 [2樓盥洗台]雅致的印象的化妝台。采用好用的多功能3面鏡子。當然地板暖氣也被在2樓的禮堂設置

洗臉 [1樓洗臉室]洗臉室在門口的旁邊。來客也不無多心而可以使用嗎?

廁所 [1樓廁所]廁所在1樓和2樓。

公共汽車 1坪類型的系統總線。為地板暖氣也被在脫衣服的室設置也減輕加熱打擊的不安。為在2樓洗的衣物的隨身攜帶便利,能在2樓結束私人的生活空間

室內 [洗衣槽房]能在一樣的空間結束洗衣和洗的衣物曬幹。可以也被把在花粉症,視為好東西的室內曬幹。晚上,并且,用全館sarapoka空氣調節,曬,在早晨乾,不能提高家務效率嗎?

陽台 陽台被對主卧室、西式房間、洗衣槽房的旁邊的共計3個地方設置。為分別正獨立也被考慮隱私性

風景 能從閣樓的北側窗到遮擋風景的東西而感到懊悔的晴空塔瞭望(依據天氣好壞)。

門口 除了鞋櫃之外也有鞋衣帽寄存處。為不僅什麼能慎重保管喜歡的鞋而且收藏嬰兒車以及高爾夫球背景也便利

其他 外壁是用瓦蓋,并且正上演高級感。另外,采用TOTO光觸媒技術活用的高性能瓷磚。因為汙垢被由於太陽的光分解,被因為下雨衝洗所以被一直保持美。

小川小學(約560m) 步行7分鐘

南成瀨中學(約1030m) 步行13分鐘

全樓層總面積127.52平方公尺(公共簿面積)的本房屋建築物是作為3LDK+2S+WIC+閣樓這個易用性良好度的房型※S是儲藏室
> 用語集

用語集

推薦重點

查看評論 收起

周邊地圖

地址 東京都町田市小川2丁目 > GoogleMap


諮詢
諮詢
諮詢
諮詢