27,800,000 日圓
小學 川崎市立西生田小學 220m
中學 川崎市立西生田中學 390m
超市 OdakyuOX讀賣大地店 1150m
公園 細山東公園 220m
醫院 百合丘Sumire診所 200m
其他便利設施1 讀賣遊樂園前站北口(小田急線) 1040m
其他便利設施2 小田急線"新百合丘站"南口 1870m
其他便利設施3 Lawson麻生細山店 110m
○ 小田急小田原線"Yomiuri land mae"車站步行13分鐘
○ 到最近公車站步行2分鐘
開往"Yomiuri land mae"車站、"新百合丘"車站
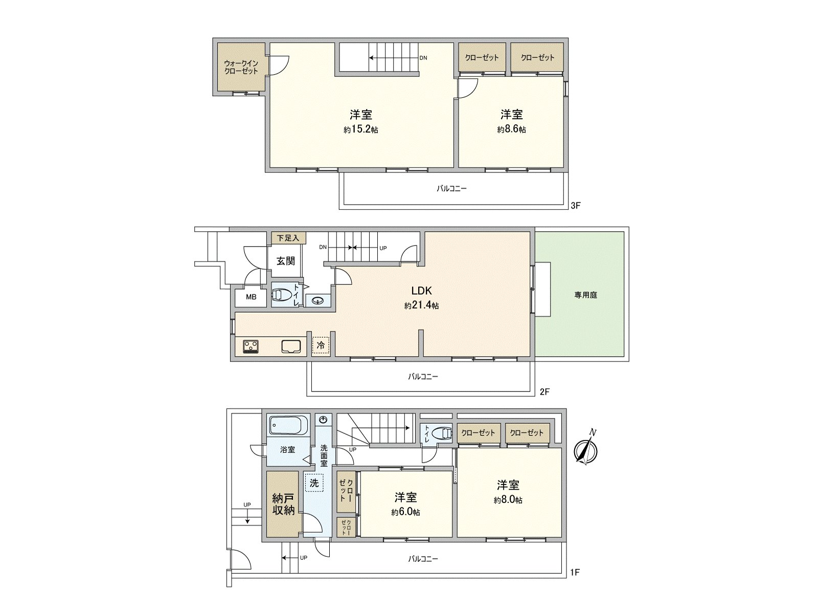
○ 適應私人使用面積148.36平方公尺透天房的面積
○ 日照為3一方採光房、所有房間朝南良好
○ 高的透天房感覺的三胞胎(3層樓)獨立性住戸
○ 在耐震性之前的牆式構造Mansion
因為沒有柱子所以到房間的角落有效活用
○ 可飼養寵物(有細則)
○ 門口2樓(在樓梯連接)
在Mansion中,段落數的少的房間位置
○ 對2樓.3樓的房間雙重的框格已經翻新
[翻新履歷]
◆2025年1月
・在專用院子人造草坪施工
◆2023年6月
・浴室換氣乾燥機交換
・插座開關交換
◆2020年1月
・1樓走廊Cross換貼
◆2017年
・1樓廁所更換
◆2011年6月
・整體衛浴交換
◆2011年3月
・Cross換貼
・地板換貼
・樓梯地板換貼
・廚房交換
・2樓盥洗台設置
・2樓廁所更換
・鞋櫃交換
查看評論 收起