97,980,000 日圓
小學 川崎市立南百合丘小學 440m
中學 川崎市立長澤中學 1100m
公園 弘法松公園 180m
公園 上麻生公園 440m
醫院 asao診療所 580m
其他便利設施1 小田急線"新百合丘站"南口 900m
其他便利設施2 全家便利店百合丘3丁目商店 150m
全室地板/壁紙的換貼 流理台(廚房)更換 浴室更換 廁所更換 盥洗台交換 地板更換 熱水器交換 門交換
計劃內裝(全室地板,地板,門)(2026年2月) , 計劃水運轉(廚房,浴室,廁所,洗手間,熱水供應器)(2026年2月)
※不僅內覽而且,可以關於周邊環境以及購買的說明。如感興趣,歡迎請隨時聯繫我們。
■交通指南、位置環境
━━━━━━・・・・・
○小田急線"新百合丘"車站步行12分鐘
○小田急線"百合丘"車站步行13分鐘
○位於南斜的高地,開放感覺和寂靜兩立
■推薦重點
━━━━━━・・・・・
○野村不動產開發商"Hills"系列
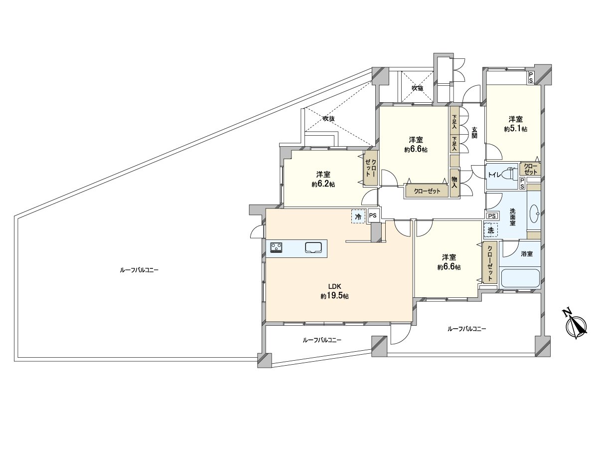
○私人使用面積100.93平方公尺
○4LDK
○關於頂樓、邊間,陽光、風景都良好
○屋頂陽台94.72平方公尺有
○對門部分有專用貯藏室
○有防盜門、宅配保管櫃
○寵物飼養可(到小型的狗、2頭貓,有細則)
■始自於骨架的翻新工程(2026年2月工程完畢)
━━━━━・・・・・
(換貼)全室地板·地板
(交換)組合廚房、盥洗台、整體衛浴·廁所、門、熱水供應器
■周邊設施
━━━━━・・・・・
○全家便利店百合丘3丁目商店:步行2分鐘(約150m)
○生命新百合丘商店natchu:步行8分鐘(約570m)
○asao診療所 :步行8分鐘(約580m)
○弘法松公園:步行3分鐘(約180m)
○上麻生公園:步行5分鐘(約350m)
○南百合丘小學:步行6分鐘(約440m)
○長澤中學:步行14分鐘(約1,100m)
查看評論 收起