59,990,000 日圓
小學 谷田小學 830m
中學 大谷場中學 1200m
超市 THE BIG-A浦和太田窪商店 330m
公園 不動入公園 150m
醫院 田中醫院 620m
其他便利設施1 7-Eleven埼玉太田窪商店 380m
其他便利設施2 全家便利店埼玉太田窪商店 590m
其他便利設施3 浦和太田窪郵局 630m
-房屋的推薦重點-
▼位置
・JR京濱東北/根岸線,武藏野線"南浦和"車站步行23分鐘
・能利用2線路
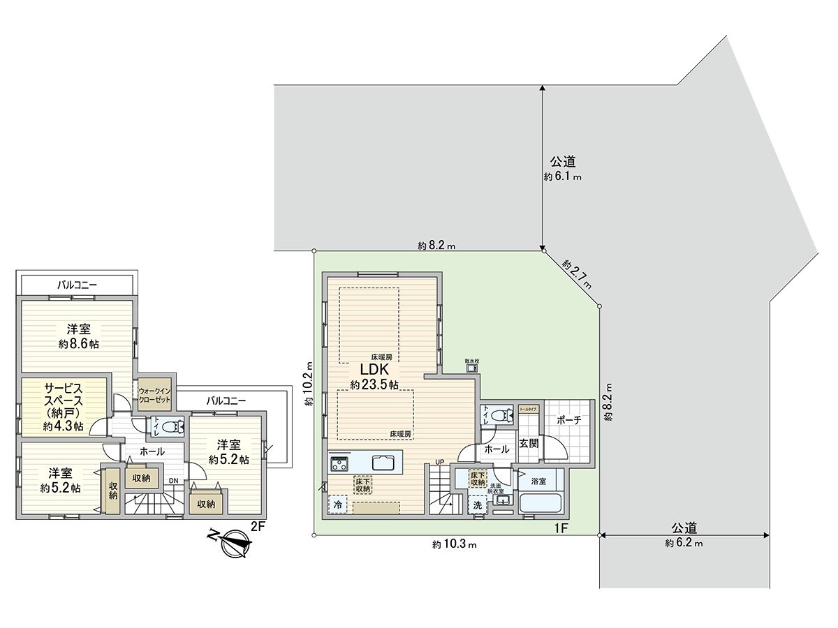
▼房屋的特徴
・2026年6月築的2層的3SLDK
・有汽車空間1台分鐘(出自車型的)
・在角地有解放感
▼房間的特徴
・約23.5張塌塌米寬敞的生活
・重視家族的對話的客廳in台階
・1坪尺寸的寬敞的浴室
・有再加熱功能的整體衛浴
▼設備
・與家族的會話興奮起來的開放式廚房
・附帶能減輕家務的負擔的洗碗機的組合廚房
・在廁所,附帶舒適的溫水衝洗馬桶座
・生活是冷的日,但是能溫暖地渡過的地板暖氣的
・附帶來客時便利的TV監視器的內部對講機
・嵌入式衣櫃、地板下邊收納收納豐富
・東北,東南的2面陽台
▼周邊環境
・到THE BIG-A浦和太田窪商店步行5分鐘(約330m)
・到不動入公園步行2分鐘(約150m)
■ 在找想要的家方面給予幫助的━━━━━・・・
房屋的詳細、需討論是如感興趣,歡迎請隨時聯繫我們。
查看評論 收起