21,800,000 日圓
小學 埼玉市立大宮西小學 750m
中學 埼玉市立大宮西中學校 1600m
超市 業務超市埼玉3橋店 1700m
公園 指扇道下公園 210m
醫院 做看醫院 600m
其他便利設施1 SEICOMART mandana店 650m
其他便利設施2 藥妝店咳嗽指扇商店 600m
其他便利設施3 埼玉市西區三橋分所 1500m
■ 推薦重點━━━━━━━━━━━━━━━・・・・・
○ 能使用2車站
JR川越線"西大宮"車站步行25分鐘
JR京浜東北線其他"大宮"車站公共汽車35分"東5味道貝門"停歩5分
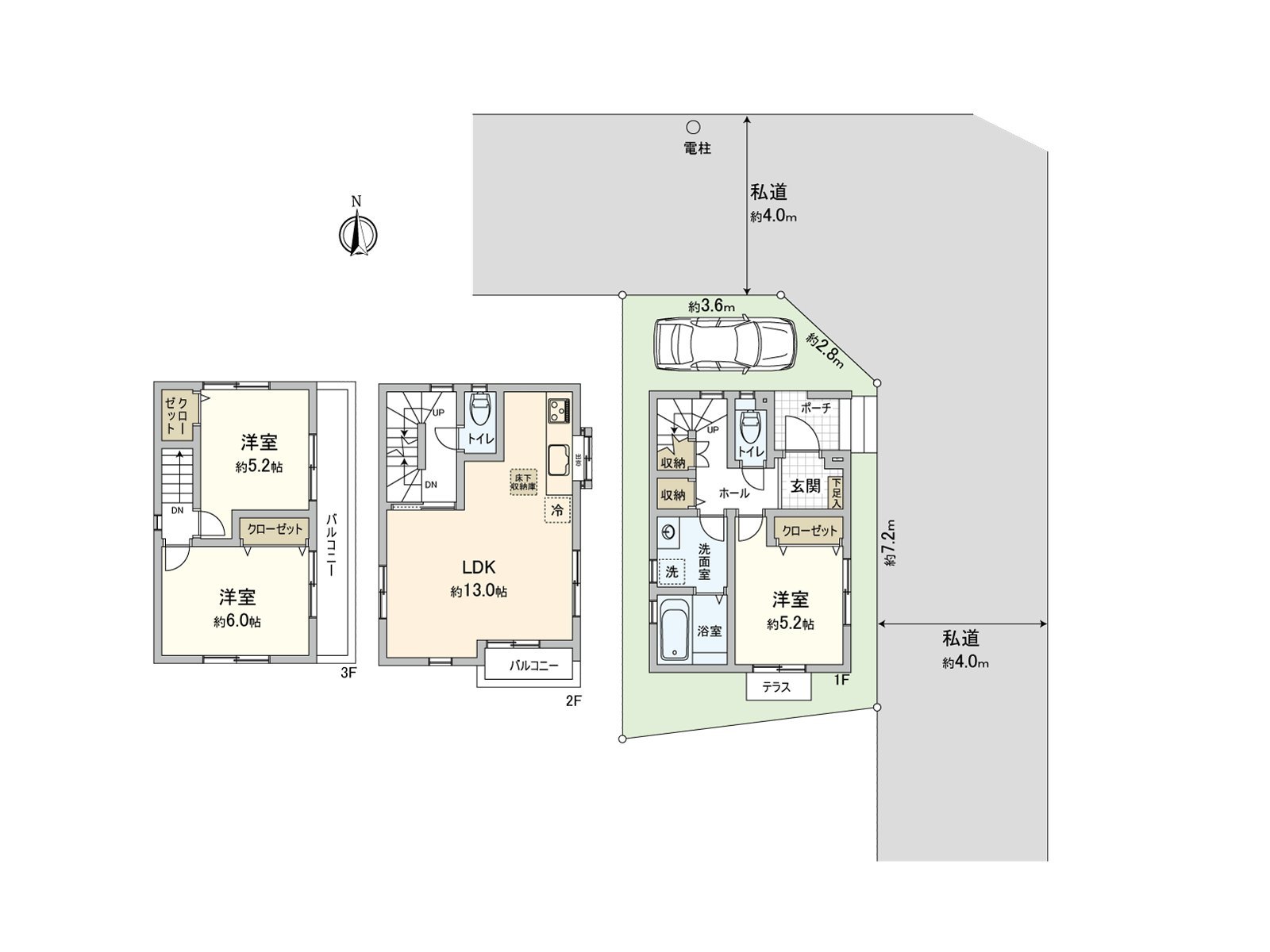
○ 位於北×東角地
○ 13.0張塌塌米LDK
○ 所有房間2面采光
○ 全居室存儲空間有
○ 停車位1台分鐘有(出自車型的)
○ 在步行10分鐘的範圍以內生活便利設施有
(小學、公園、便利店·藥妝店)
■ 翻新內容(打算在2026年5月完成)━━━━━━━━━━━━━━━・・・・・
○ 全居室Cross換貼
○ 層瓷磚面對(LDK、西式房間、走廊、門口)
○ 廚房、浴室、盥洗台、廁所更換
○ 門交換
○ 進氣口、開關插座交換
○ 嵌入燈交換
○ 壁櫥交換
○ 熱水器交換
查看評論 收起