板橋區大谷口1丁目新建透天房

透天房

外觀 東京地鐵線有樂町線千川站步行10分鐘的東京地鐵線副都心線千川站步行10分鐘的東武東上線大山站步行14分鐘

含有前面道路的外觀 在前面道路,已經柏油鋪設,并且步行以及騎自行車的移動也順利。因為沒面向主要街道所以比較是交通量的少的區域。請一定在當地確認實際的陽光。

外觀 另外,當可能有什麼對房子的購買不知道,不安的事情的時候請一定和本公司聯系。

外觀 在本公司,顧客放心,商談,單元對應吧。如感興趣,歡迎請隨時聯繫我們。

外觀 另外,可以三井Rehouse推薦的房屋的介紹。

外觀 對房地產的N/A點請交給在三井Rehouse我。

外觀 也承受關於資金的需討論。

外觀 請內覽預訂或者申請資料隨便連接。

外觀 請房屋詳細的諮詢或者申請資料隨便命令。

外觀 周圍有超市或者便利店,是便利性好的居住地。

LIFE千川站前店(約750m)

顯示出全家便利店大谷口商店(約440m)

板橋區立大谷口公園(約350m)

板橋大谷口郵局(約410m) 步行6分鐘。

板橋區立板橋第10小學(約510m)

板橋區長靴板橋第2中學(約860m)

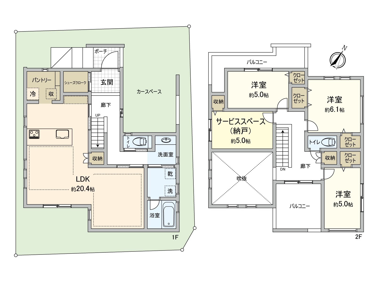
3SLDK建築面積128.78平方公尺(約38.95坪)土地面積125.61平方公尺(約37.99坪)
> 用語集

用語集

推薦重點

查看評論 收起

周邊地圖

地址 東京都板橋區大谷口1丁目 > GoogleMap


諮詢
諮詢
諮詢
諮詢