練馬區錦1丁目透天房

透天房 事前預約制參觀會

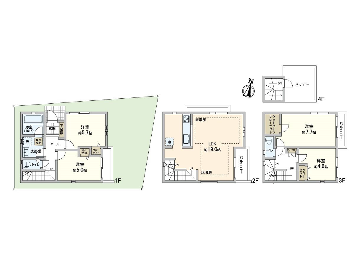
客廳 窗日期在約19.0張塌塌米LDK寬敞的客廳,熱的空間伸展。

外觀 東武東上線上板橋站步行14分鐘的東京地鐵線有樂町線冰川台站步行16分鐘的東京地鐵線副都心線冰川台站步行16分鐘

外觀 2023年11月築

廚房 是一邊認為交流是家族、朋友,一邊菜能享用的開放式廚房。

廚房 有菜容易做的寬敞的洗滌槽。

廚房 洗碗機被設置,收拾好像能減輕需要的時間。

廚房 支援家務的洗碗機搭載的組合廚房。用3份爐子,能效率好做成復數的菜是由同時進行。

室內 裝飾喜歡的室內裝飾,做能家族和平的安慰的空間,能要。

洗臉 是有像飯店的幹凈的感的洗手間。即使放洗衣機也舒適能確保某一個面積。浴室正跟洗手間連接,脫衣服之後的移動是能順利進行的設計。

公共汽車 好像在寬敞的浴缸治療每天的疲勞。

廁所 感到以White為基調的清潔感覺的廁所。為簡單的裝修,用廁所覆蓋物或者墊子喜歡的氣氛進行自定義。

室內 放家務室以及孩子的遊戲室,床,在卧室nito多彩性可以靈活使用。

陽台 好像曬每天的洗的衣物的時間變得快樂的屋頂陽台。在假日,能曬一次家族的床上用品。是住mumau一方的用法的可能性根據自由構思擴展到的空間。

門口 能充分收藏鞋的門口收納被具有,好像能和感覺清醒保持門口。

含有前面道路的外觀 在前面道路,已經柏油鋪設,并且步行以及騎自行車的移動也順利。請一定在當地確認實際的陽光。

OK上板橋商店(約550m) "高質量、Everyday Low Price"被在經營方針聲明的折扣超市。有75份的停車場,也便於大量購買。/營業時間從8:30到21:30。

在7-Eleven練馬城北中央公園的前面的商店(約240m)

全家便利店櫻川3丁目商店(約370m)

Tomod's上板橋南口店(約630m) 醫藥品、護理用品、嬰兒用品、寵物用品、化妝品、日用品等的廣泛的商品被辦理。/營業時間從9:00到22:00。

城北中央公園(約220m) 有棒球場以及體育場,狗LAN等的設施的寬敞的公園。樹林的綠的在映照中能享受運動以及散步,公園遊戲。

上板橋郵局(約740m) 在郵件、儲蓄、保險的窗口和星期六·日·節假日,也能使用的ATM是被設置的店鋪。/ATM營業時間(從星期一到星期五)從8:00到20:00(星期六)從9:00到19:00(星期天、節日)從9:00到18:00。

練馬區立仲町小學(約290m)

練馬區立開進第四中學校(約970m)

4LDK建築面積106.54平方公尺(約32.22坪)土地面積80.17平方公尺(約24.25坪)
> 用語集

用語集

推薦重點

查看評論 收起

周邊地圖

地址 東京都練馬區錦1丁目 > GoogleMap


諮詢 事前預約制參觀會
事前預約制參觀會 諮詢
諮詢