新價格 南區相武台3丁目新建透天房1號樓

透天房

外觀 [外觀]小田急小田原線"相武台前"車站步行16分鐘,公園,小學是步行5分鐘的範圍以內育兒環境良好度

客廳 [LDK:約20.0張塌塌米]是在客廳渡過的家族和在廚房進行工作的的交流容易拿的住宅設計。

客廳 [LDK:約20.0張塌塌米]能享受各種各樣的版面設計的LDK。根據心情以及生活方式,能舒服地渡過的空間的建設完成。

廚房 [廚房]支援家務的食器洗乾燥機搭載的組合廚房。3份爐子,同時地用包括烤爐在內的共計4個地方用式樣可以烹調。

公共汽車 [浴室]具有能把洗髮水或者肥皂放在的櫃台。有浴室烘乾機的,氣候作為不好的日的洗的衣物幹燥的地方積極活動。也可以入浴之後的濕氣對策或者防霉預防,衛生。

洗臉 [洗臉室]洗臉室和浴室沒有高低差別,并且是也容易用於哪個代的式樣。

廁所 [2F廁所]是打掃的容易做的簡單的裝修。

室內 [西式房間:約8.0張塌塌米]是光把從面向東南的窗插進去的亮的西式房間。

收納 [收納/西式房間:約8.0張塌塌米]

陽台 [陽台]是面向東南的陽台。上午的陽光強大,并且洗的衣物早早幹。

室內 [西式房間:約6.0張塌塌米]根據家族構成以及生活方式,在多目的可以使用。是客氣的色調的木紋風格的地板在空間帶來重音,作為打扮的室內。

室內 [西側西式房間:約5.2張塌塌米]是打掃的容易做的所有房間地板式樣。為了也容易同什麼樣的味道的室內裝飾相適應裝修被用柔軟的顏色味道概括。

室內 [東面西式房間:約5.2張塌塌米]是把書齋以及在家的空白,孩子的遊戲室在生活方式合起來,能利用的西式房間。

門口 [門口]收納豐富的門口。鞋櫃的門全身有鏡子,外出之前可以外表的確認。

客廳 [研究櫃台/LDK:約20.0張塌塌米]作為微小的工作空間以及孩子的學習空白可以使用。

廚房 [廚房:爐子]

廚房 [廚房:洗滌槽]

廚房 [廚房:洗碗機]

收納 [收納/LDK:約20.0張塌塌米]為收藏平常不想出示的日用品也把打掃用具視為好東西。

停車場 [停車場]是汽車空間縱隊2台分鐘(出自車型的)的停車場。

含有前面道路的外觀 [前面道路]幅員約8.0m的前面道路。

客廳 [LDK:約20.0張塌塌米]

客廳 [LDK:約20.0張塌塌米]

客廳 [LDK:約20.0張塌塌米]

客廳 [LDK:約20.0張塌塌米]

室內 [西式房間:約8.0張塌塌米]

室內 [西式房間:約8.0張塌塌米]

室內 [西式房間:約6.0張塌塌米]

室內 [西式房間:約6.0張塌塌米]

收納 [收納/西式房間:約6.0張塌塌米]

收納 [西側西式房間:約5.2張塌塌米]

室內 [東面西式房間:約5.2張塌塌米]

室內 [東面西式房間:約5.2張塌塌米]

室內 [東面西式房間:約5.2張塌塌米]

收納 [收納/東面西式房間:約5.2張塌塌米]

陽台 [陽台]是面向東南的陽台。

門口 [門口收納]能充分收藏鞋的門口收納被具有,好像能和感覺清醒保持門口。櫃台部分裝飾鑰匙盒場以及小東西,能給門口上色。

含有前面道路的外觀 [前面道路]幅員約8.0m的前面道路。

外觀 [外觀]有院子,能享受種植或者家庭菜園。

相武台前站(小田急小田原線)(約1220m)

相模原市立相武台小學(約330m)

相模原市立相武台中學(約1260m)

Mybasket相武台住宅小區商店(約220m)

Big-A相模原相武台商店(約400m)

相武台假髮公園(約140m)

緒方醫院(約260m)

Create S·D新磯野商店(約330m)

7-Eleven相模原相武台小農店(約180m)

相模原相武台住宅小區郵局(約190m)

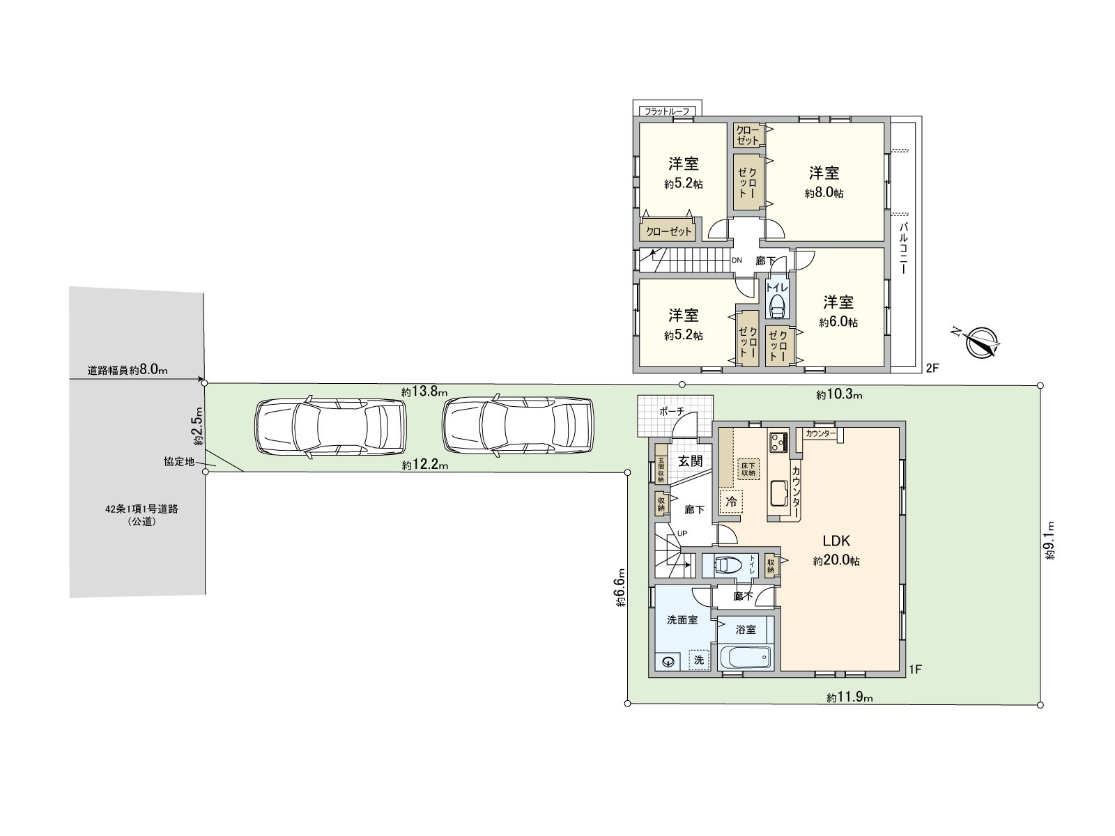
[平面圖]土地面積139.46平方公尺,建築面積105.16大米的4LDK
> 用語集

用語集

推薦重點

查看評論 收起

周邊地圖

地址 神奈川縣相模原市南區相武台3丁目 > GoogleMap


諮詢
諮詢
諮詢
諮詢