藤澤市本鵠沼4丁目新建透天房3號樓

透天房

外觀 [現狀照片]小田急電鐵江之島線"本鵠沼"車站步行10分鐘(約800m)。(拍攝日:在2026年1月10日)

外觀 [現狀照片]第一類低層住宅專用區的閒靜的住宅區。(拍攝日:在2026年1月10日)

外觀 [外觀照片]有汽車空間2台分鐘(出自車型的)。(拍攝日:在2026年1月10日)

含有前面道路的外觀 [東南一側前面道路]幅員約4.0m

含有前面道路的外觀 [東南一側前面道路]幅員約4.0m

鵠沼小學(約660m)

藤澤市立鵠沼中學(約1160m)

湘南T-SITE(約670m) 感到書店,雜貨鋪,咖啡廳,餐廳等的湘南的有個性的商店準備齊全。

suzukiya鵠沼店(約560m)

7-ELEVEn藤澤本鵠沼5丁目商店(約260m)

HAC藥品鵠沼商店(約530m)

長久保公園都市綠化植物園(約500m) 有85台停車場,能優閒自在的休息的都市綠化植物園。有園裡面的設施(花壇、溪流廣場、預料廣場、草坪廣場、池塘),植物園(藤架、香草園、玫瑰園),綠的咨詢處。

早稻田醫院(約330m)

鵠沼櫻岡郵局(約860m)

本鵠沼站(小田急江之島線)(約800m)

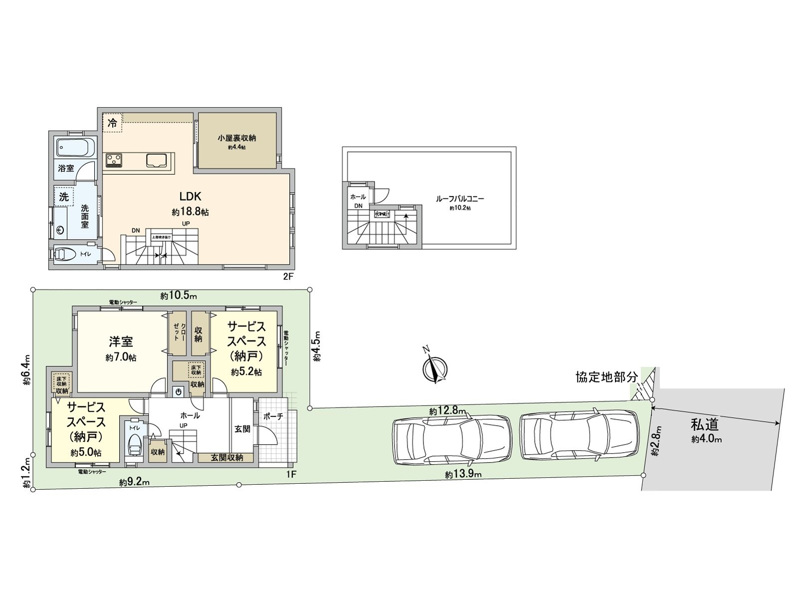
[平面圖]土地面積:115.64平方公尺(約34.98坪)/建築面積:94.19平方公尺(約28.49坪)/房型:1LDK+S*2
> 用語集

用語集

推薦重點

查看評論 收起

周邊地圖

地址 神奈川縣藤澤市本鵠沼4丁目 > GoogleMap


諮詢
諮詢
諮詢
諮詢