藤澤市鵠沼松岡1丁目透天房

透天房

客廳 [藤澤市鵠沼松岡1丁目透天房]到小田急江之島線"鵠沼海岸"車站步行10分鐘,并且到江之島電鐵線"鵠沼"車站步行9分鐘的位置。用2線路2車站利用來,便於通勤上學。

外觀 [當地外觀照片]位於第一類低層住宅專用區。周圍是閒靜的住宅區。平穩的生活實現。

客廳 [約20.5張塌塌米LDK/]LDK被對2樓部分設定。難以在意來自外面的視線,家族一起,并且舒適地可以度過舒適的一時。(把潔凈用於地板上)

客廳 [約20.5張塌塌米LDK/]采用能感到家族的樣子的客廳樓梯。互相見面的機會增加,是能充分取得交流的家。

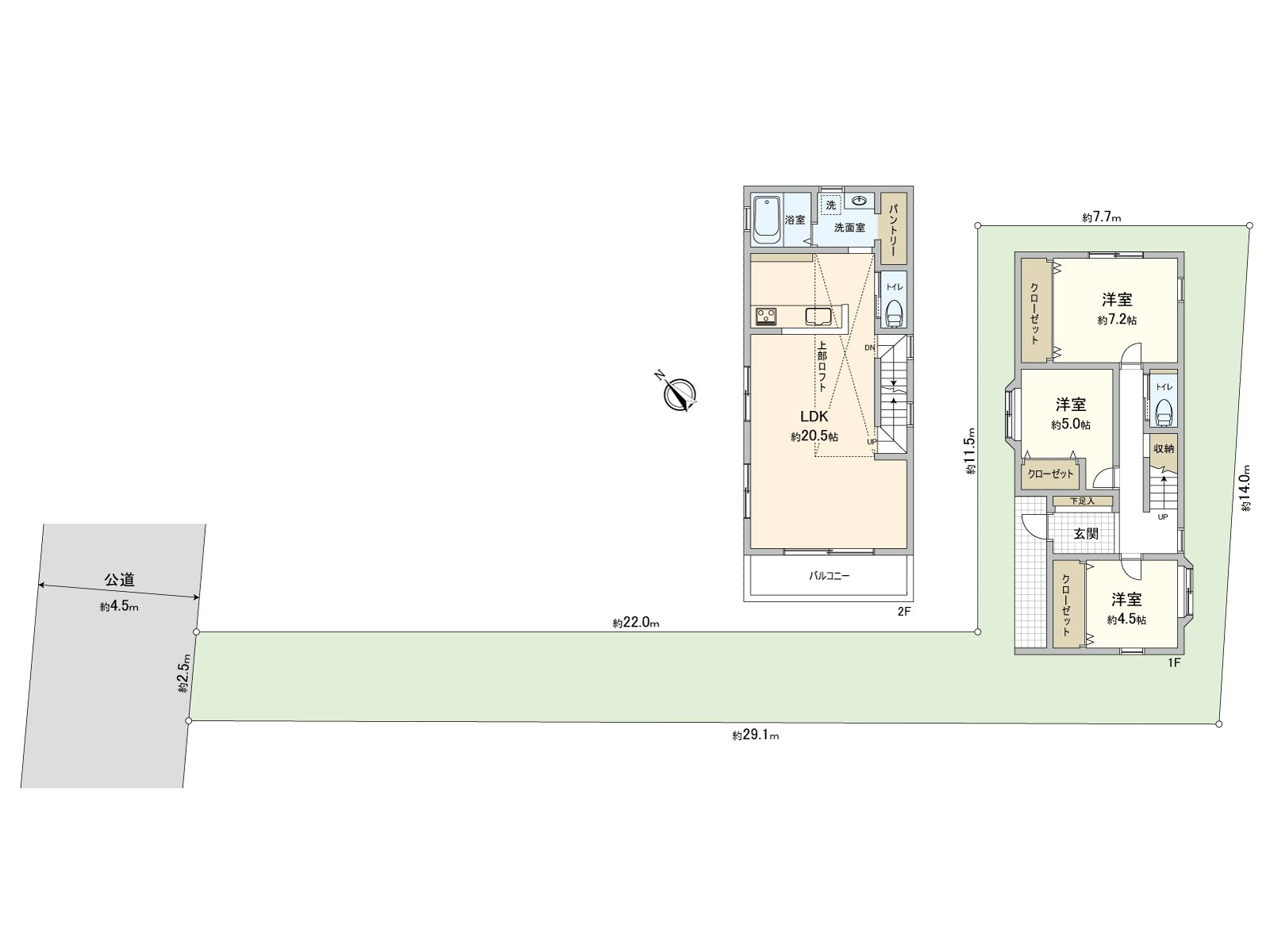
其他內省 [約20.5張塌塌米LDK/]家族聚集的約20.5張塌塌米寬敞的LDK。在多重可以使用的閣樓被設立。

廚房 [廚房]是開放式的組合廚房。為3份瓦斯爐被配置同時能烹調復數品。用有效的烹調,短ni在家務的時候連接。

廚房 [廚房]在廚房,洗碗機被搭載。飯後的要洗的東西交給你,渡過慢慢地做的時間。

洗臉 [洗臉室]有三面鏡的盥洗台被設置。鏡子背後和盤子下邊正設有存儲空間,收藏電吹風機或者化妝品。

公共汽車 [浴室]是有客氣的顏色味道的重音面板被綉上的幹凈的感的浴室。在雨的日,洗的衣物也能吸幹的浴室換氣乾燥機被搭載。

風景 [始自於住戸的風景照片]是來自朝南西陽台的風景。吸室外的空氣,能修整。

陽台 [陽台]陽台因為被布置西南一側所以好像能心情舒暢地吸幹洗的衣物以及被褥。曬衣架五金被設置。

其他內省 [閣樓]為有閣樓縱向的空間也能有效活用。能作為存儲空間以及愛好空間利用。

室內 [約4.5張塌塌米西式房間/]因為采光部分是腰高窗所以容易舉行家具的配置,可以發揮壁面的版面設計。

收納 [約4.5張塌塌米收納/西式房間(的)]具有有枕頭擱板和衣架管子的壁櫥。在每個每個家族或者季節區分,能保管。

收納 [約5.0張塌塌米收納/西式房間(的)]因為收藏被準備所以房間難以亂七八糟,整潔的狀態能耐用。

室內 [約7.2張塌塌米西式房間/]是把房間的設計性提高到東北一側的壁面的重音Cross被給予的漂亮的裝修。

收納 [約7.2張塌塌米西式房間/]是能從走廊進出的獨立的房間。能舒適地渡過作為私人的時間。

廁所 [廁所]有溫水衝洗馬桶座的廁所。因為牆帳單遙控被設置所以容易舉行操縱。

廁所 [廁所]因為窗被設置所以自然光插進去。廁所被在1樓和2樓設立。

其他內省

外觀

其他內省

含有前面道路的外觀

sotetsu Rosen鵠沼商店(約1240m) 步行16分鐘。

Create S·D小田急鵠沼海岸站前店(約840m) 步行11分鐘。在2樓,鵠沼海岸內科診所、kugenuma眼科診所正住進來

全家便利店鵠沼海岸商店(約810m) 步行11分鐘。

7-ELEVEn鵠沼海岸商店(約960m) 步行12分鐘。

鵠沼海岸內科診所(約840m) 步行11分鐘。

預先藤谷公園(約410m) 步行6分鐘。

鵠沼海岸郵局(約1010m) 步行13分鐘。

藤沢市立鵠洋小學校(約1350m) 步行17分鐘。

藤沢市立湘洋中學校(約1940m) 步行25分鐘。

LDK被在2樓安置,是被考慮隱私的家。是能用存儲空間或者愛好空間等的各種各樣的用途靈活運用的有閣樓。
> 用語集

用語集

推薦重點

查看評論 收起

周邊地圖

地址 神奈川縣藤澤市鵠沼松岡1丁目 > GoogleMap


諮詢
諮詢
諮詢
諮詢