46,800,000 日圓
小學 清須東小學校 760m
中學 清洲中學 2040m
超市 Feel清須店 1100m
其他便利設施1 全家便利店清洲丸之內商店 510m
其他便利設施2 Welcia清洲商店 690m
其他便利設施3 清洲丸之內郵局 470m
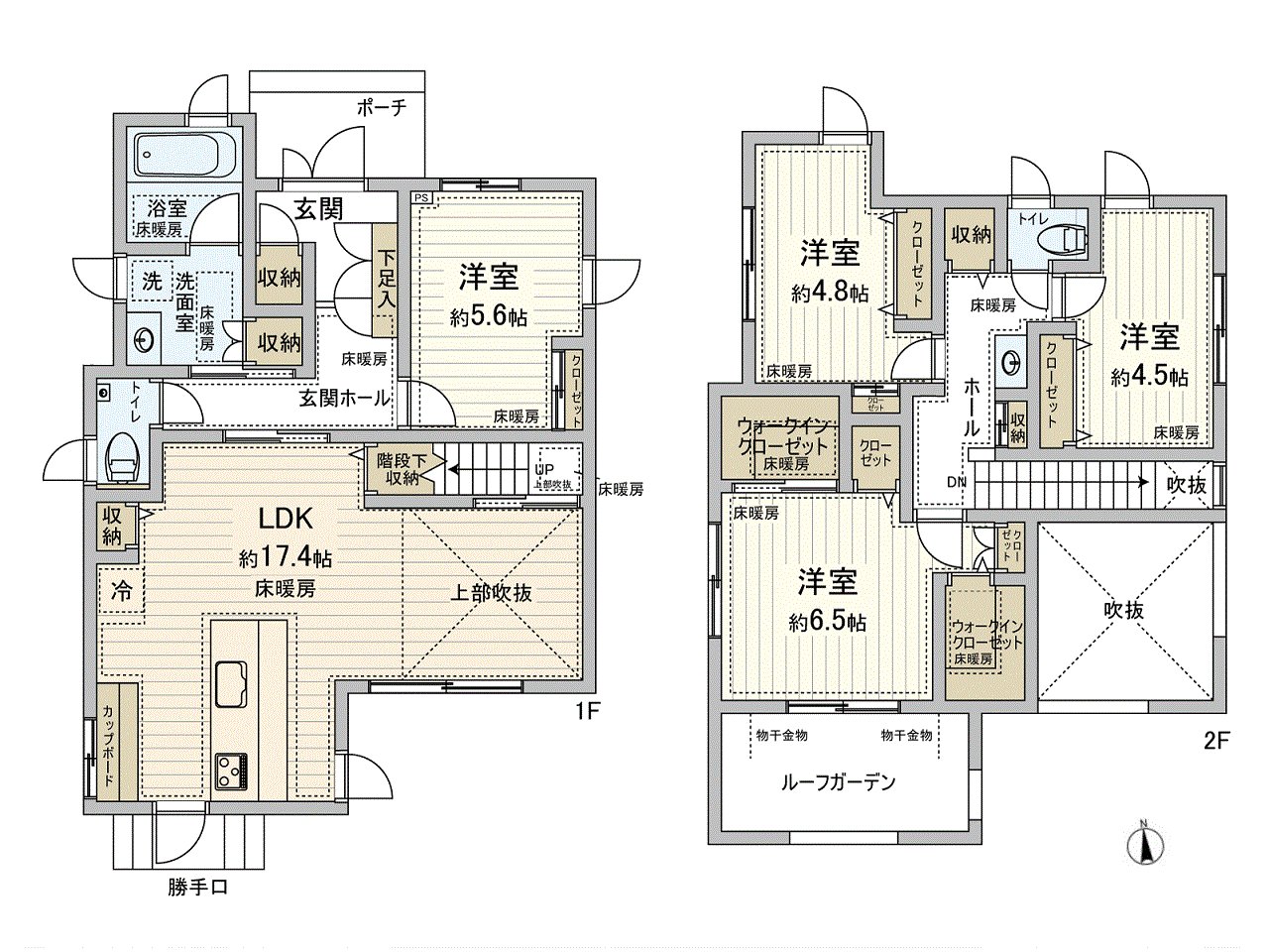
-房屋的推薦重點-
▼位置
・名鐵名古屋本線"丸之內"車站步行約4分
▼建築物的特徴
・ 一條建築公司施工
・2019年4月建築
・用地面積約48坪
・有停車位3台分鐘(出自車型的)車庫1台分鐘
・把汙垢由於太陽和雨的力丟掉的光觸媒的外壁
▼房間的特徴
・ 有通頂設計的開放感覺溢出來的客廳飯廳
・ 容易把打掃換成的全室木地板式樣
・ 在家族之間的交流增加的客廳台階
・ 收藏嵌入式衣櫃,充實(2個地方2樓西式房間)
・ 雨的日也是洗的衣物難以濕掉的2樓屋頂花園
▼設備
・冷的冬天熱腳下的地板暖氣設置
(客廳·廚房、西式房間、洗臉、浴室)
・ 附帶保養作為簡單的電磁爐
・ 有再加熱功能的整體衛浴
・ 在廁所,附帶舒適的溫水衝洗馬桶座
■ 在找想要的家方面給予幫助的━━━━━・・・
房屋的詳細、需討論是如感興趣,歡迎請隨時聯繫我們。
查看評論 收起