42,800,000 日圓
小學 野田小學 440m
中學 一柳中學 1460m
超市 Feel i Eye Plaza 370m
公園 柳田公園 220m
醫院 作為醫療法人幸運朋友會八田地對待,來醫院 1050m
其他便利設施1 名古屋八田郵局 360m
其他便利設施2 AOKI藥房野田商店 380m
其他便利設施3 Lawson中川野田1丁目商店 600m
▼位置
・ JR關西本線八田站步行12分鐘
・ 可八田站3線路利用到各方面交通便捷
▼建築物的特徴
・ 2022年築的築淺物件
・ 附帶來客時便利的TV監視器的內部對講機
・ 有從屬於車庫的停車場2台分鐘(出自車型的)
・ 光照在東南一側道路良好
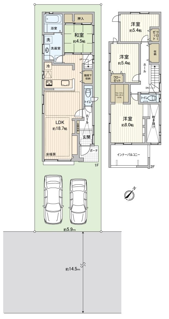
・ 每前面道路約14.5m有開放感覺
・ 陡峭的也因為下雨放心的內部陽台
▼房間的特徴
・ 約18.7張塌塌米寬鬆的LDK
・ 有壁櫥的約4.5張塌塌米和式房間
▼設備
・ 附帶3份爐子烤爐的組合廚房
・ 與家族的會話興奮起來的開放式廚房
・ 附帶窗的亮的浴室
・ 在廁所,附帶舒適的溫水衝洗馬桶座
・ 1.2樓有廁所
・ 生活是冷的日,但是能溫暖地渡過的地板暖氣的
・ 有樓梯下邊收納
・ 收藏嵌入式衣櫃,充實
▼周邊環境
・到野田小學約440m
・到一柳中學約1460m
■ 在找想要的家方面給予幫助的━━━━━・・・
房屋的詳細、需討論是如感興趣,歡迎請隨時聯繫我們。
查看評論 收起