26,900,000 日圓
小學 北小學 480m
中學 藤浪中學 1210m
公園 北町橡子廣場 770m
醫院 醫療法人憐聖會 1030m
其他便利設施1 yoshizuya津島北Terrace 520m
其他便利設施2 Lawson津島又吉町2丁目商店 670m
其他便利設施3 7-Eleven津島昭和町商店 730m
-房屋的推薦重點-
▼位置
・ 名鐵尾西線町方站步行4分鐘
・ 名鐵津島線藤浪站步行17分鐘
▼建築物的特徴
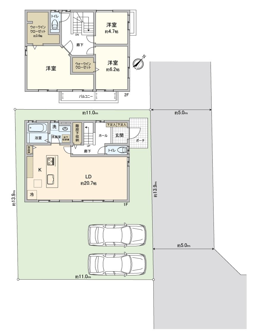
・ 大和住宅工業株式會社的自由設計住宅
・ 附帶來客時便利的TV監視器的內部對講機
・ 有汽車空間2台分鐘(出自2台分鐘車型的)
▼房間的特徴
・ 家務流跡線被想的容易使用的房型
・ 約20.7張塌塌米寬鬆的LDK
・ 2面采光的亮的西式房間
▼設備
・ 與家族的會話興奮起來的開放式廚房
・ 有開放感覺的Island廚房
・ 從屬於便於調料的存貨以及應急食品的收藏的食品庫
・ 1.2樓有廁所
・ 有地板下邊儲藏室
・ 收藏嵌入式衣櫃,充實
▼周邊環境
・到北小學約480m
・到藤浪中學約1210m
■ 在找想要的家方面給予幫助的━━━━━・・・
房屋的詳細、需討論是如感興趣,歡迎請隨時聯繫我們。
查看評論 收起