80,800,000 日圓
小學 拓北小學 450m
中學 筱路中學 1380m
超市 全日食chienkuritchi 930m
公園 aino裡suginoko公園 320m
醫院 kashima內科診所 630m
其他便利設施1 JR札沼線"拓北"車站 970m
其他便利設施2 2條7-Eleven札幌aino裡店 300m
其他便利設施3 札幌藍之裡三條郵局 660m
■ aino裡2條1丁目━━━━━━━━━━━━━━━━━━━━・・・
○ 株式會社中山眞琴akitekutsu舊施工
○ JR札沼線"拓北"車站步行13分鐘
○ 2011年9月築
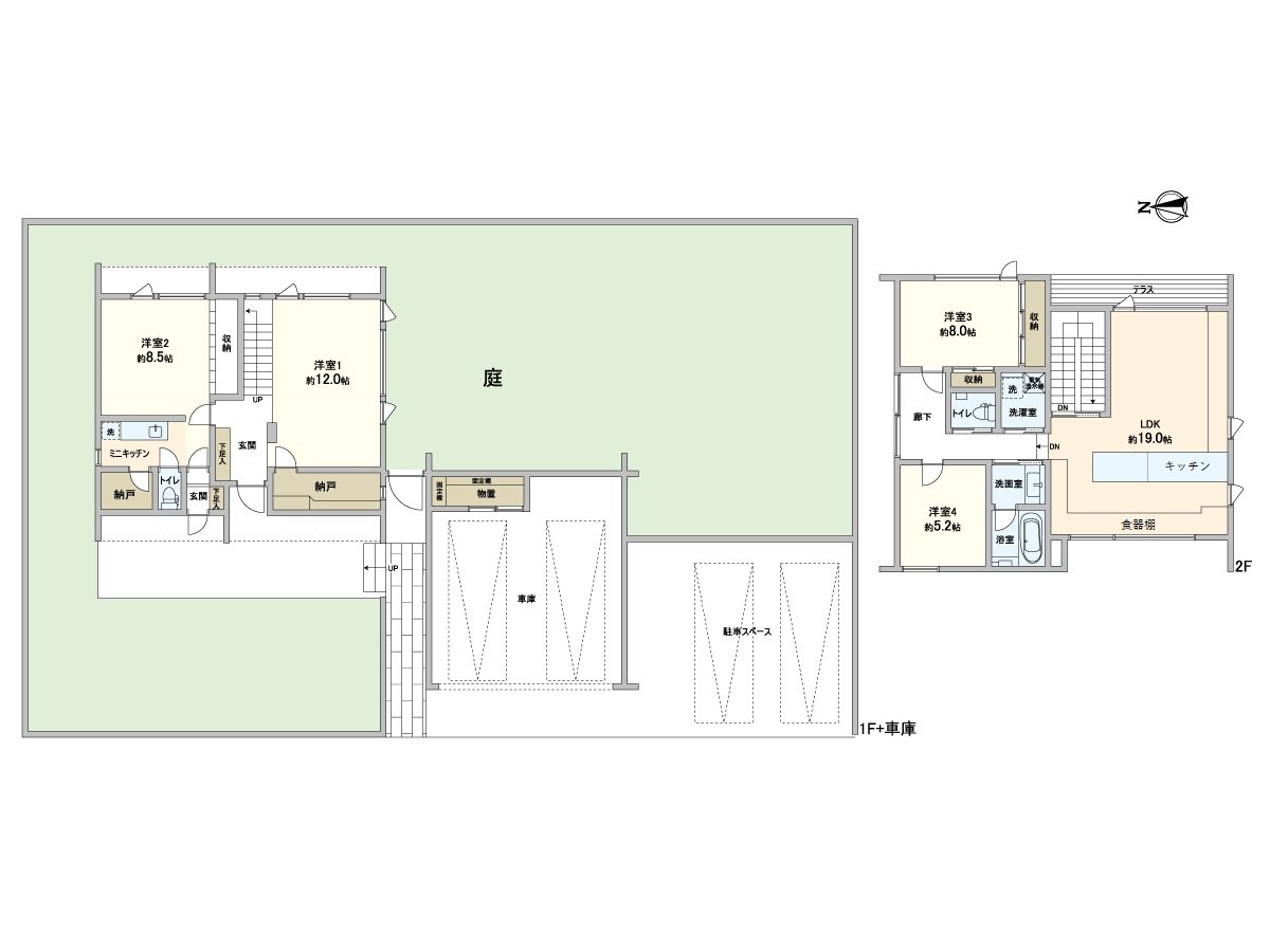
○ 木造合金鍍金鋼板buki 2階建
○ 土地面積583.37平方公尺(約176.46坪)
○ 建築面積137.45平方公尺(約41.57坪)
○ 4LDK
○ 約19.0張塌塌米寬敞的LDK
○ 開放式廚房
○ 在1樓小廚房有
○ 在2樓Terrace有
○ 節能熱水器
○ 太陽光設備有
○ 大的院子在狗LAN以及另外各種各樣的用途可以使用
○ 4台停車可以(依靠車型)
查看評論 收起