新座市片山3丁目透天房

透天房

客廳 是亮的氣氛的LDK。從廚房,能瞭望客廳,一邊和家族享受交流,一邊菜做好。

外觀 考慮到通風和采光的設計,小孩們輕鬆愉快的養育,家族產生舒適和團聚。

廚房 因為是抽屜型的收納所以容易把重的東西拿進拿出。

公共汽車 有廣泛地出示有限的空間的橫寬的寬大的米勒。由於每天的疲勞實現癒yasu公共汽車時間。

洗臉 洗臉,脫衣服的室有毛巾或者洗滌劑等的許多想收藏的東西。是收納的事情也被規矩齊整地想的時尚又具有功能性的洗臉,脫衣服的室。

廁所 在1樓,2樓廁所設備。現在當然的有溫水便座。

門口 門口有充足的存儲空間。

門口 亮的空間把住mau人以及拜訪的人舒服地用優質接來的門口。

其他內省 不從門口看得見客廳的私人的空白的間取設計。

洗臉 用當做白基調的裝修有幹凈的感。

其他 有作為來客時候便利的TV監視器的內部對講機。

室內 因為西式房間(約3張塌塌米)是從客廳看得到的地方的地方所以作為孩子的遊戲室、午睡空間使用的是推薦。

客廳 能把大型電視放在的約19張塌塌米寬敞的生活陽光好,并且房間滿滿地熟悉的陽光展開。

客廳 在全家渡過長的時間的生活最是心情的好的東西。在有開放感覺的寬敞的客廳邀請光和風。許多也收納實現舒適的住空間。

客廳 公開產生舒展的空間的精選的擴大和舒適。是對家族和想珍惜渡過的時間的而言正好的明亮地有舒適的住空間。

客廳 即使在室內有也感到充足的陽光和爽快的風的開放感覺是溢出來的客廳。

廚房 一邊做廚房工作,一邊享受與重要的家族的會話。是家族的交流出生於的廚房。

廚房 漂亮的組合廚房。是會話興奮起來的開放式廚房。

廚房 屬於3份爐子·烤爐的,能效率好做成復數的菜是由同時進行。

廚房 在廚房背面,有設置碗櫥,并且收納力有提高。

門口 門口鏡子便於外表檢查。

廁所 為和1樓.2樓準備好也能忙的早晨的時間對應。

洗臉 洗衣堆放處也上部有擱板,在洗滌劑nato收納來,便利。

洗臉 在洗臉,脫衣服的室,確保也內衣或者毛巾等的能收藏的空白。

客廳 在約19.3張塌塌米LDK和約3張塌塌米西式房間,可以到底利用。開放門的話在超過22張塌塌米空間。能對可變性而言根據生活方式使用。

客廳 因為導線是正結實地能消掉的房型所以餐桌以及沙發,低桌子等的家具也能結實地布置。請家族在寬鬆的面積的空間渡過團聚的時間。

客廳 有因為使室內的空氣循環所以提高冷暖氣設備效率的頂粉絲。

客廳 廣泛地去的家族能一起舒暢的LDK約19張塌塌米。在這裡迎接每天的開端和結束的重要的空間不論什麼時候舒服的空氣感覺。用安靜的氣氛渡過,家族喧鬧隆起來的日。

門口 在來客進入了的時候也使住mau人心跳的漂亮的門口。

外觀 時尚,現代的外觀。閒靜的住宅區的第一類低層住宅專用區。良好的景觀被歷時建築物的建蔽率以及容積率,將來保持。

外觀 有2個地方把在不在時的行李寄存視為好東西的宅配保管櫃。

BREG池田商店(約480m)

峰會商店新座片山店(約640m)

7-Eleven練馬西大泉6丁目商店(約870m)

瀧島醫院(約570m)

新座市立片山小學(約900m)

新座市立第3中學(約1400m)

片山3丁目第2兒童快樂園(約270m)

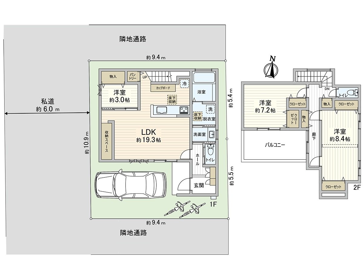
平面圖
> 用語集

用語集

推薦重點

查看評論 收起

周邊地圖

地址 埼玉縣新座市片山3丁目 > GoogleMap


諮詢
諮詢
諮詢
諮詢