西東京市東町1丁目新建透天房B號棟

透天房

客廳 是便於到西武池袋線"保谷"車站步行8分鐘的通勤上學的物件。

外觀 感到私人的空間的安靜的居住環境是魅力房屋。

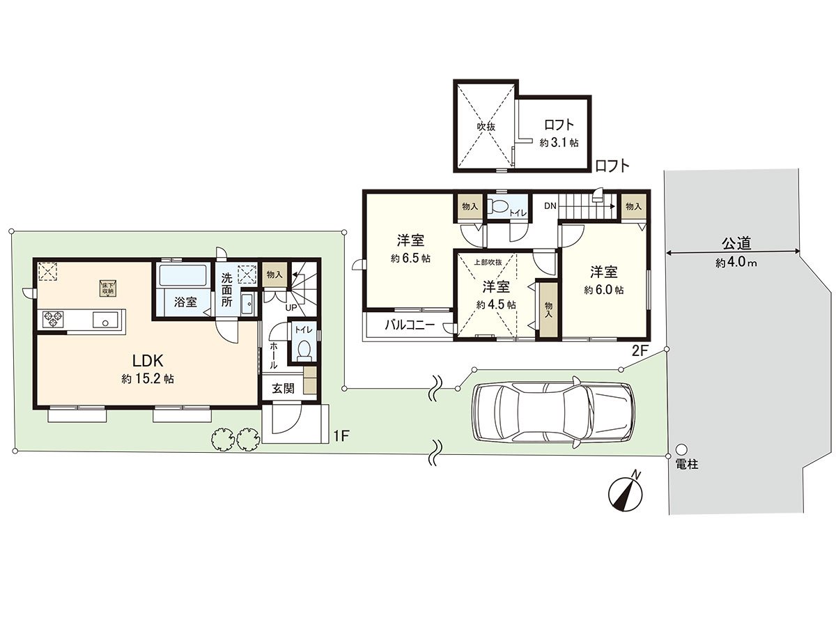
客廳 南向曝光面有大的窗,有開放感覺的約15.2張塌塌米LDK是魅力房屋。

客廳 容易去中小學、超市、公園,是容易做育兒的環境。

廚房

洗臉 洗手間、浴室被門口一側匯集,回家之後的洗手流跡線順利。和廚房,有時候短nitsunagaru弛張的配置不久也是魅力房屋。

公共汽車

廁所 [1樓廁所]

廁所 [2樓廁所]

室內 [約6.5張塌塌米西式房間]

室內 [約6.5張塌塌米西式房間收納]

室內 [約6.0張塌塌米西式房間]

室內 [約6.0張塌塌米西式房間]

室內 [約4.5張塌塌米西式房間]

收納 [約4.5張塌塌米西式房間的收納]

收納 [約4.5張塌塌米西式房間的閣樓]

門口

收納 [門口收納]

陽台

風景

廚房

廚房

廚房

廚房

外觀

外觀

約克食品保谷商店(約200m)

西友保谷商店(約600m)

Inageya保谷站前店(約680m)

7-Eleven西東京東町1丁目商店(約80m)

全家便利店保谷站南口店(約540m)

藥的第一Soleil保谷商店(約530m)

句子理的台階公園(約340m) 有自由廣場或者兒童廣場。另外,梅樹或者櫻等的樹木大量,并且能享受從幼兒到老年人通過四季。

西東京市立東小學(約420m)

西東京市立明保中學(約340m)

不僅三個西式房間而且,收納、愛好空間·工作區等的房間數量在什麼具有閣樓以上的約3.1張塌塌米的用法是能夠的設計。
> 用語集

用語集

推薦重點

查看評論 收起

周邊地圖

地址 東京都西東京市東町1丁目 > GoogleMap


諮詢
諮詢
諮詢
諮詢