新價格 富士見野市大井中央4丁目新建透天房

透天房

外觀

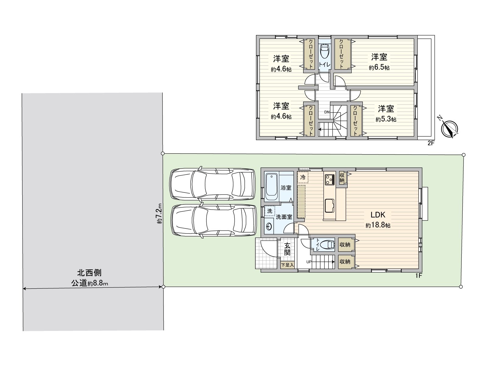
客廳 LDK(約18.8張塌塌米)

廚房

室內 西式房間(約4.6張塌塌米約4.6張塌塌米+)

室內 西式房間(約6.5張塌塌米)

室內 西式房間(約5.3張塌塌米)

其他 廚房洗滌槽

其他 食器洗淨乾燥機

其他 從屬於3份爐子·烤爐

公共汽車

洗臉 盥洗台

廁所 廁所(1F)

廁所 廁所(2F)

收納 收納(約4.6張塌塌米西式房間約4.6張塌塌米+裡面的)

收納 收納(約4.6張塌塌米西式房間約4.6張塌塌米+裡面的)

收納 收納(約6.5張塌塌米西式房間裡面的)

收納 收納(約5.3張塌塌米西式房間裡面的)

收納 收納(LDK裡面的)

收納 門口收納

陽台

院子

其他 有監視器的內部對講機

其他 熱水供應器

其他 浴室換氣乾燥暖氣時機

門口

其他 門口

其他 內部對講機·郵筒

停車場

外觀

外觀

含有前面道路的外觀

含有前面道路的外觀

鶴丘小學(約600m)

大井東中學(約1600m)

BREG大井綠丘商店(約260m)

Welcia大井町中央商店(約700m)

大井綠丘郵局(約550m)

bibamoru埼玉大井(約170m)

櫻花診所(約1000m)

龜久保西公園(約450m)

> 用語集

用語集

推薦重點

查看評論 收起

周邊地圖

地址 埼玉縣富士見野市大井中央4丁目 > GoogleMap


諮詢
諮詢
諮詢
諮詢