149,800,000 日圓
小學 區立數矢小學 420m
中學 區立東陽中學 1810m
超市 Mybasket江東富岡2丁目商店 320m
公園 木場公園 460m
其他便利設施1 7-Eleven江東木場3丁目商店 160m
其他便利設施2 7-Eleven江東冬木店 230m
其他便利設施3 全家便利店平原2丁目商店 420m
■ 交通指南━━━━━━━━━━━━━━━・・・・・
○ 東京地鐵線東西線"木場"車站步行9分鐘
○ 東京地鐵線東西線"門前仲町"車站步行12分鐘
■ 推薦重點━━━━━━━━━━━━━━━・・・・・
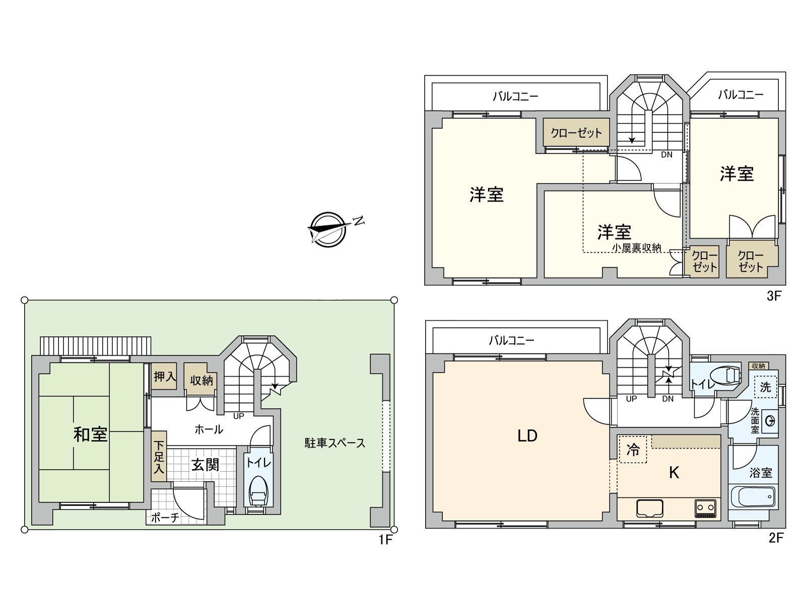
○ 木造3階建/4LDK
○ 土地面積/52.05平方公尺
○ 建築面積/92.56平方公尺
○ 前面道路幅員約5.9m(公路)
○ 有窗,容易換空氣,亮的浴室、洗手間
○ 便於收藏的小房間背後收繳付
○ 從西側陽台看平久川
○ 停車位有(車型限制有)
○ 便利店,超市,藥妝店在步行5分鐘的範圍以內,便於購物
查看評論 收起