新價格 川口市戶冢東4丁目A號棟

透天房

外觀 外觀

外觀 外觀

外觀 外觀

客廳 LDK(約18.62張塌塌米)

客廳 LDK(約18.62張塌塌米)

客廳 LDK(約18.62張塌塌米)

客廳 LDK(約18.62張塌塌米)

廚房 廚房

廚房 廚房

洗臉 洗臉

洗臉 洗臉

公共汽車 公共汽車

廁所 廁所

室內 西式房間(約7.0張塌塌米)

室內 西式房間(約7.0張塌塌米)

陽台 陽台

陽台 陽台

風景 風景

室內 西式房間(約6.0張塌塌米)

室內 西式房間(約6.0張塌塌米)

室內 儲藏室(約5.0張塌塌米)

室內 儲藏室(約5.0張塌塌米)

室內 西式房間(約4.5張塌塌米)

室內 西式房間(約4.5張塌塌米)

含有前面道路的外觀 含有前面道路的外觀

含有前面道路的外觀 含有前面道路的外觀

含有前面道路的外觀 含有前面道路的外觀

含有前面道路的外觀 含有前面道路的外觀

含有前面道路的外觀 含有前面道路的外觀

川口市立戶冢東小學(約700m)

川口市立戶冢中學(約1520m)

全家便利店川口戶冢東商店(約430m)

東川口醫院(約880m)

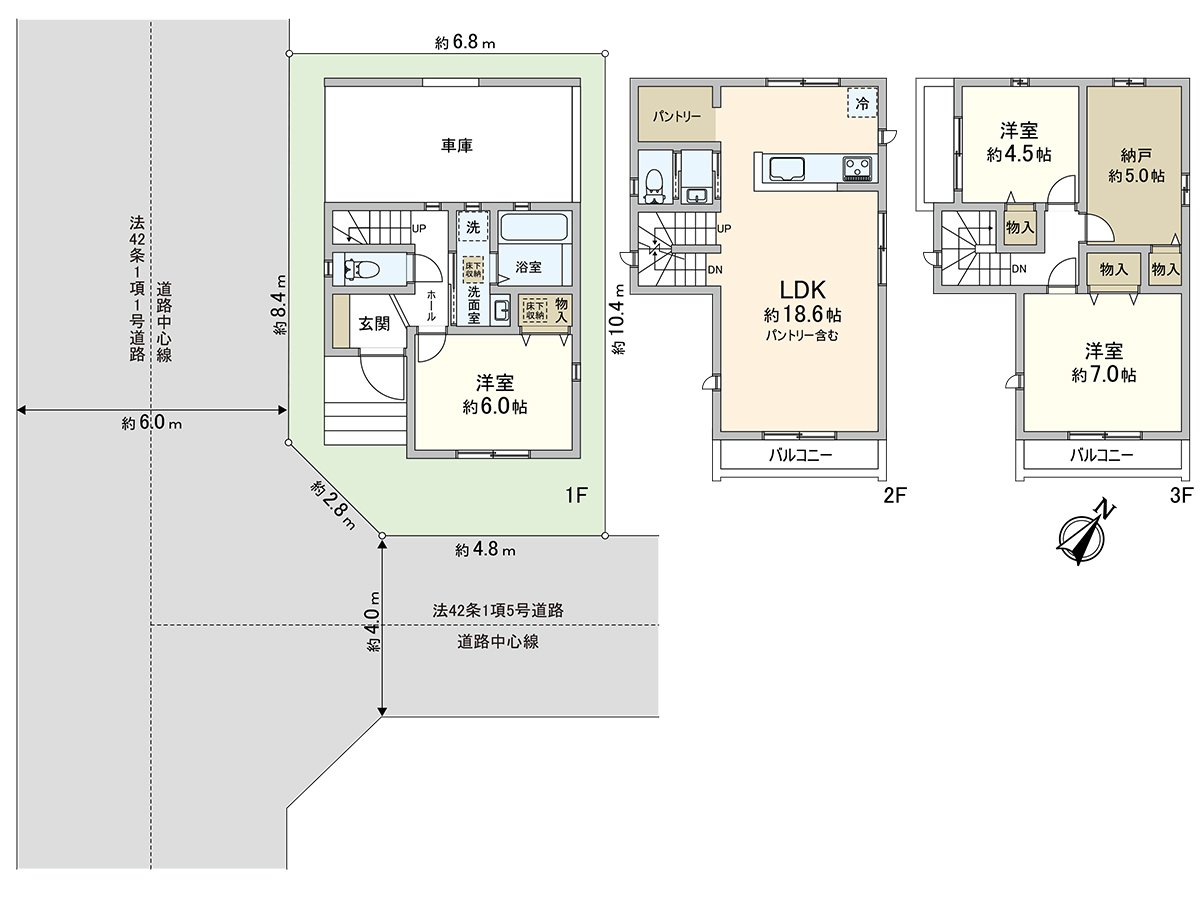
平面圖
> 用語集

用語集

推薦重點

查看評論 收起

周邊地圖

地址 埼玉縣川口市戶冢東4丁目 > GoogleMap


諮詢
諮詢
諮詢
諮詢