43,900,000 日圓
小學 川口市立戶冢東小學 350m
中學 川口市立戶冢中學 1100m
超市 小Coop戶冢東商店 240m
公園 戶冢預先ka門公園 310m
醫院 東川口診所整形外科、內科 350m
其他便利設施1 全家便利店川口戶冢東商店 260m
其他便利設施2 SUNDRUG東川口商店 480m
-房屋的推薦重點-
▼位置
・可2線路利用
埼玉高速鐵道/JR武藏野線"東川口"車站步行14分鐘
▼建築物的特徴
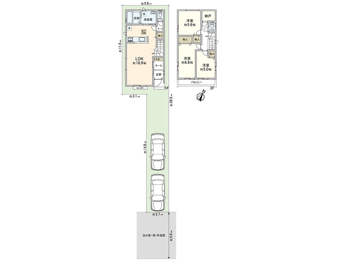
・2026年1月完成的新建透天房2階建
・2台停車位可(出自車型的)
▼房間的特徴
・約16.9張塌塌米寬敞的生活
▼設備
・與家族的對話有彈性的開放式廚房
・地板下邊收納
・浴室烘乾機
・24小時換氣系統
・1樓掃出窗鐵卷門
・3面鏡子梳妝台
・有走廊、水周圍嵌入燈
▼周邊環境
・戶冢東小學/約350m(步行5分鐘)
・戶冢中學/約1100m(步行14分鐘)
・小Coop戶冢東商店/約240m(步行3分鐘)
・全家便利店川口戶冢東商店/約260m(步行4分鐘)
・SUNDRUG東川口商店/約480m(步行6分鐘)
・東川口診所整形外科、內科/約350m(步行5分鐘)
・戶冢預先ka門公園/約310m(步行4分鐘)
■在找想要的家方面給予幫助的━━━━━・・・
房屋的詳細、需討論是如感興趣,歡迎請隨時聯繫我們。
查看評論 收起