168,000,000 日圓
小學 渋谷區立中幡小學校 340m
中學 澀谷區立笹塚中學 960m
超市 Mybasket澀谷本町6丁目商店 380m
其他便利設施1 MINISTOP澀谷本町6丁目商店 370m
其他便利設施2 Lawson幡谷2丁目商店 390m
其他便利設施3 doragguseimusu幡谷6號通店 440m
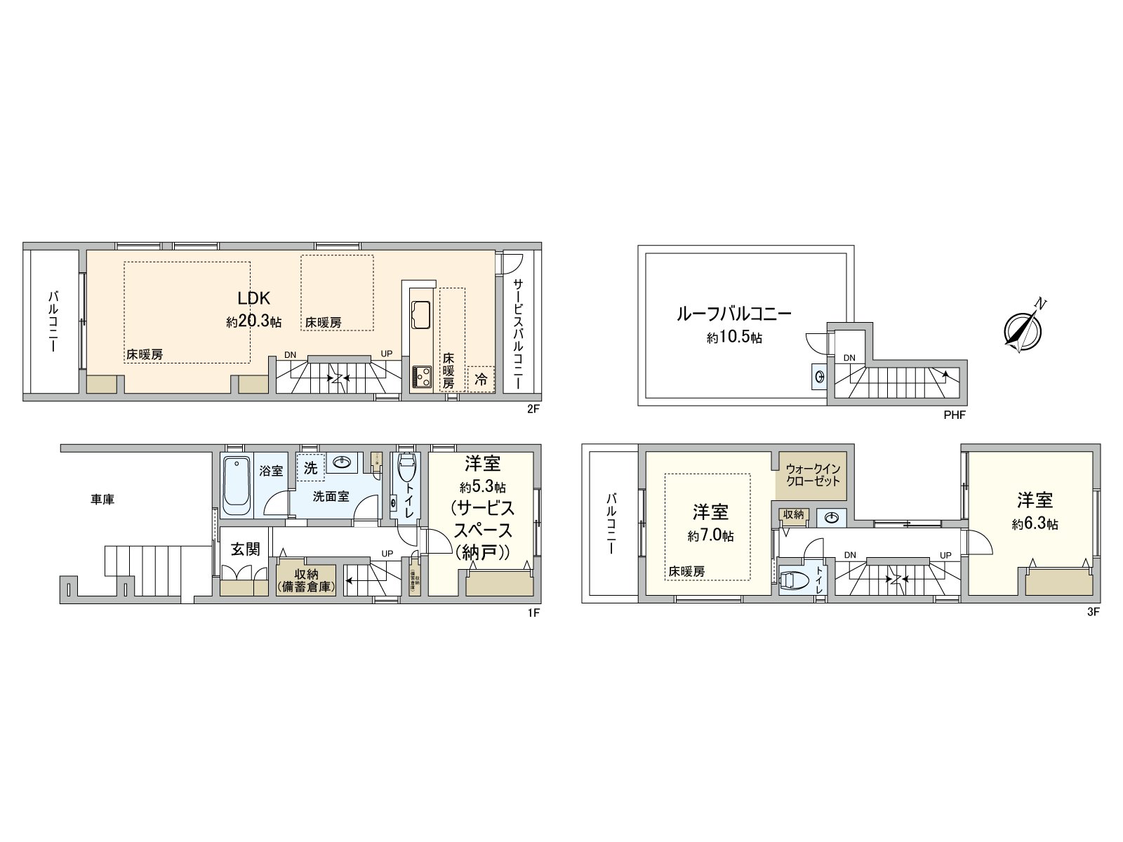
-房屋的推薦重點-
▼位置
・京王電鐵京王線"幡谷"車站步行7分鐘
▼推薦重點
・木造3樓核算的新建透天房
・建築面積118.45平方公尺的2SLDK
(含有車庫面積10.38平方公尺+儲備倉庫面積1.85平米)
・有停車位1台分鐘(出自車型的)
・TES式地板暖氣(LDK、約7張塌塌米西式房間)
・家族的會話興奮起來的開放式廚房
・嵌入式衣櫃
・2F,通風為兩面陽台良好
■ 在找想要的家方面給予幫助的━━━━━・・・
房屋的詳細、需討論是如感興趣,歡迎請隨時聯繫我們。
查看評論 收起