159,800,000 日圓
小學 世田谷區立三軒茶屋小學 800m
超市 Peacock store三軒茶屋之杜店 350m
醫院 三軒茶屋第一醫院 760m
其他便利設施1 全家便利店三軒茶屋2丁目商店 370m
其他便利設施2 Lawson三軒茶屋商店 400m
其他便利設施3 世田谷郵局 600m
全室地板/壁紙的換貼 流理台(廚房)更換 浴室更換 廁所更換 盥洗台交換 地板更換 門交換 配管交換
計劃內裝(全室地板,地板,門)(2026年1月) , 計劃水運轉(廚房,浴室,廁所,洗手間,供排水管)(2026年1月)
■交通指南━━━━━━━━━━━━━━━・・・・・
0東急田園都市線"三軒茶屋"車站步行10分鐘
0東急世田谷線"三軒茶屋"車站步行10分鐘
■推薦重點━━━━━━━━━━━━━━━・・・・・
02007年1月築
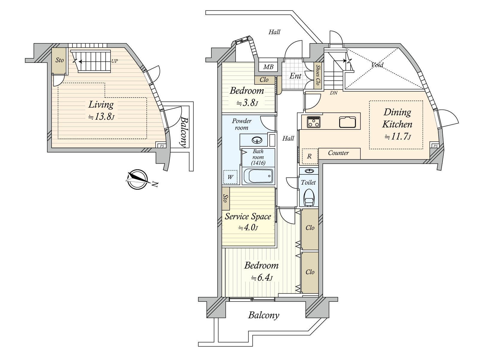
090.85平方公尺的2SLDK
0西科姆家庭生活株式會社開發商
0東急建設株式會社施工
0防盜門有
0不在時便利的宅出售箱
0寵物飼養可(飼養有細則)
0約13.8張塌塌米客廳
0別墅型的住戸
0地板暖氣有
0在廚房,附帶碗櫥,洗碗機
0再加熱,浴室換氣乾燥暖氣時機附帶
■翻新內容(2026年1月實施)━━━━━━━━━━━━━━━・・・・・
0交換:組合廚房,整體衛浴,廁所,盥洗台,洗衣麵包,
供排水管,樓梯踏板、扶手,門,下足入,照明開關·插座,照明器具
0換貼:地板,Cross,瓷器質量瓷磚,紗門
0新的設置:溫水式地板暖氣廁所洗手,面板,收納、擱板,空調(餐廳·客廳)
■LIFE信息━━━━━━━━━━━━━━━・・・・・
0Peacock store三軒茶屋之杜店、約350m
0全家便利店三軒茶屋2丁目商店、約370m
0Lawson三軒茶屋商店、約400m
0鬆本清三軒茶屋商店、約780m
0世田谷郵局、約600m
0三軒茶屋第一醫院、約760m
0世田谷區立三軒茶屋公園、約150m
0世田谷區立三軒茶屋小學、約150m
0世田谷區立駒澤中學、約800m
查看評論 收起