260,000,000 日圓
小學 目黑區立鷹番小學 340m
中學 目黑中央中學 1230m
公園 碑文谷公園 590m
醫院 轉告內科診所 270m
其他便利設施1 全家便利店學藝大學站南店 260m
其他便利設施2 SUNDRUG學藝大學站前店 350m
其他便利設施3 目黑鷹番郵局 340m
■交通指南・・・・・
0 東急東橫線"學藝大學"車站步行6分鐘
■推薦重點
○ 2026年9月下旬完成計劃的新建透天房
0 位於第一類低層住宅專用區的閒靜的住宅區
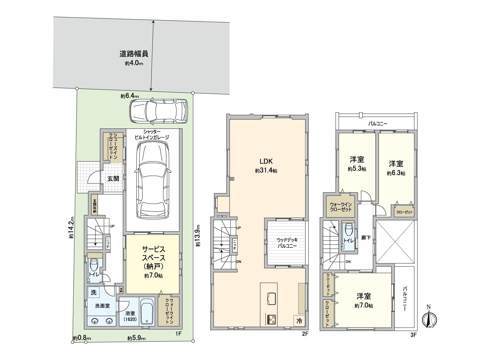
○ 建築面積:160.67平方公尺
○ 3層樓,3SLDK+WIC的間取
○ 3面采光的亮的LDK(約31.4張塌塌米)
○ 全居室2面采光
○ 包括西式房間的WIC在內,在各居室從屬於存儲空間
○ 有走入式鞋櫃
○ 有2個地方廁所(1樓,3樓)
○ 有內裝車庫(車型限制有)
0 有陽台木材露台
查看評論 收起