55,900,000 日圓
小學 橫濱市立富士見台小學 730m
中學 橫濱市立岩井原中學 990m
公園 池之上公園 570m
醫院 生駒醫院 280m
其他便利設施1 Lawson橫濱東久保町商店 490m
其他便利設施2 クリエイトエス・ディー横浜東久保町店 490m
其他便利設施3 橫濱久保町郵局 780m
■ 交通指南━━━━━━━━━━━━━━━・・・・・
○ JR"保土谷站"步行10分鐘
○ 相鐵本線"西橫濱站"步行11分鐘
■ 推薦重點━━━━━━━━━━━━━━━・・・・・
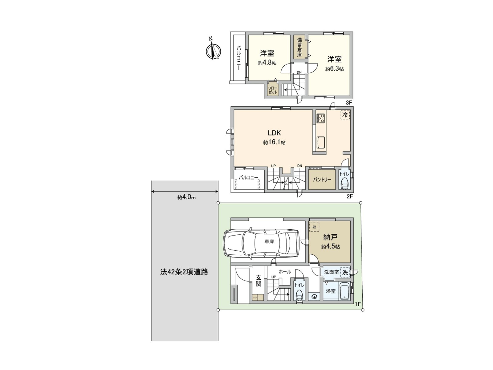
○ 約16.1張塌塌米寬敞的LDK
○ 的與家族的會話增加的生活INN樓梯
○ 能瞭望客廳飯廳的開放式廚房
○ 廚房旁邊有大容量的餐具室
○ 有在多目的可以使用的儲藏室
○ 保護重要的車的內裝車庫(※車型限制有)
○ 步行範圍以內有便利店以及藥妝店,居住環境良好
○ 通風為2面陽台良好
■ 充實的設備方法━━━━━━━━━━━━━━━・・・・・
○ 24小時換氣系統
○ 一體式乳罩緊身衣凈水塞子
○ 淋浴廁所
○ TV門電話
○ 1坪類型系統總線
○ 洗髮水化妝台
○ 復數層玻璃框格
■ 比負責人━━━━━━━━━━━━━━━・・・・・
也把周圍房屋合起來,不僅周邊環境以及設施的向導而且,能介紹。
因為購買時的各項費用,住宅貸款(月的償還例)也接受資金計劃的需討論所以,
請比當有了興趣的時候頁下方有的"諮商"或者"預約參觀"更詢問。
因為也受理在電話的需討論所以請到免付費專線"0120-959-832"隨便詢問。
查看評論 收起