Prime Garden日進2番館

公寓

外觀 [外觀照片]是到名鐵豐田線"日進站"步行1分鐘的免震構造Mansion(層疊橡膠)。

客廳 [客廳飯廳]朝南的客廳飯廳(約11.2張塌塌米)

客廳 [客廳飯廳]容易清掃的地板式樣

廚房 [廚房]已經熱水供應器、瓦斯爐、廚房栓翻新

廚房 [廚房]能集中於菜的獨立型廚房

廚房 [廚房]能集中於菜的獨立型廚房

室內 [約6.0張塌塌米和式房間(的)]跟客廳飯廳連通的和式房間(約6.0張塌塌米)

室內 [約4.6張塌塌米南側西式房間(的)]跟朝南的陽台連通

室內 [約4.6張塌塌米南側西式房間(的)]有全居室收納

室內 [約6.1張塌塌米北側西式房間(的)]嵌入式衣櫃附帶的西式房間(約6.1張塌塌米)

室內 [約6.1張塌塌米北側西式房間(的)]嵌入式衣櫃附帶的西式房間(約6.1張塌塌米)

收納 [嵌入式衣櫃(北側西式房間(約6.1張塌塌米)部分)]

室內 [約4.6張塌塌米北側西式房間(的)]有全居室收納

室內 [約4.6張塌塌米北側西式房間(的)]有全居室收納

公共汽車 [浴室]

廁所 [廁所]

陽台 [陽台]

門口 [門口]

風景 [來自陽台的風景]

門口 [門口]

門口 [門口]

陽台 [陽台]

風景 [來自陽台的風景]

廁所 [廁所]

外觀 [外觀照片]房屋的詳細到"三井Rehouse日進Center"是如感興趣,歡迎請隨時聯繫我們。

停車場 [停車場]

共有部分 [腳踏車停放處]

共有部分 [宅配保管櫃]

入口 [入口]

外觀 [外觀照片]房屋的詳細到"三井Rehouse日進Center"是如感興趣,歡迎請隨時聯繫我們。

外觀 [外觀照片]房屋的詳細到"三井Rehouse日進Center"是如感興趣,歡迎請隨時聯繫我們。

外觀 [外觀照片]房屋的詳細到"三井Rehouse日進Center"是如感興趣,歡迎請隨時聯繫我們。

Coop aichi日進商店(約450m)

Feel日進商店(約400m)

日進市立梨子的樹小學(約780m)

日進市立日進東中學(約2650m)

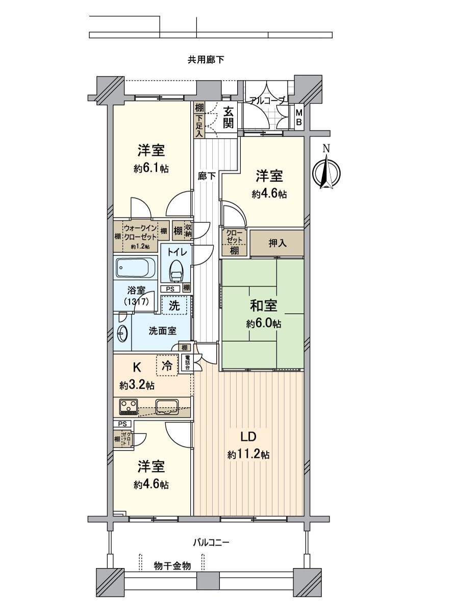
[平面圖]朝南的4LDK+嵌入式衣櫃
> 用語集

用語集

推薦重點

查看評論 收起

周邊地圖

地址 愛知縣日進市榮2丁目 > GoogleMap


諮詢
諮詢
諮詢
諮詢