130,000,000 日圓
全室地板/壁紙的換貼 流理台(廚房)更換 浴室更換 廁所更換 盥洗台交換 地板更換 門交換
計劃水運轉(廚房,浴室,廁所,洗手間)(2026年3月) , 計劃內裝(全室地板,地板,牆,門)(2026年3月)
■推薦重點
━━━━━━━━・・・・・
○ 到最近車站步行1分鐘
○ 能利用3車站3線路
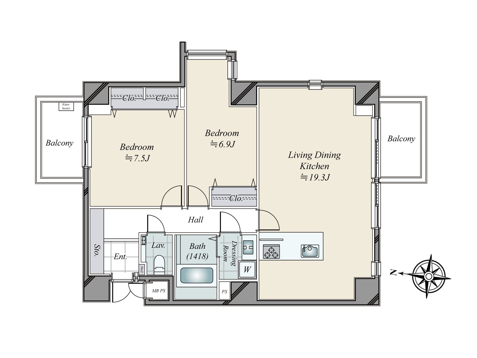
○ 北、東、南的3方向房間
○ 私人使用面積78.74平方公尺、2LDK
○ 約19.3張塌塌米LDK
○ 通風在南、北的兩面陽台良好
○ 1418尺寸的浴室
○ 防盜門的
○ 宅配保管櫃
○ 24小時都可以外出丟垃圾
■翻新內容(2026年3月實施)
━━━━━━━━・・・・・
○ 組合廚房(洗碗機)
○ 整體衛浴NEW交換
○ 盥洗台NEW交換
○ 附帶溫水衝洗馬桶座的廁所NEW交換
○ 門、門口收納等的交換
○ 地板張替
○ 牆、天花板Cross張替
○ 門口牆一部分環保克拉設置其他
■交通指南
━━━━━━━━・・・・・
○ 都營三田線"白山"車站步行1分鐘
○ 東京地鐵南北線"本駒込"車站步行10分鐘
○ 都營大江戶線、三田線"春日"車站步行14分鐘
查看評論 收起