垂水區南多聞台8丁目新建透天房

透天房

外觀 是適應閒靜的住宅區的成熟穩重的色調的外觀

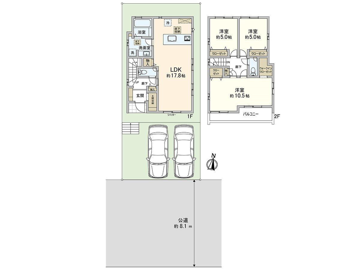
客廳 約17.8張塌塌米LDK

客廳

客廳

客廳 餐廳旁邊收納

廚房 嵌入燈漂亮的廚房

廚房 與家族的會話興奮起來的櫃台廚房

廚房

廚房

廚房 食器洗乾燥機有

廚房

洗臉 擁有鏡子背後收納+開放的類型的收納的三面鏡型的盥洗台

洗臉 洗衣機場地

公共汽車 有便於換氣的窗的浴室

洗臉 有浴室的門在旁邊便於毛巾的收藏的擱板

廁所 廁所(1樓)

室內 樓梯.2樓禮堂

收納 樓梯旁邊收納

廁所 廁所(2樓)

廁所 1樓.2樓的廁所有埋入收納。

西式房間 西式房間(約5.0張塌塌米西側)

西式房間 西式房間(約5.0張塌塌米西側)

西式房間 西式房間(約5.0張塌塌米西側)裡面的壁櫥

西式房間 西式房間(約5.0張塌塌米東面)

西式房間 西式房間(約5.0張塌塌米東面)裡面的壁櫥

西式房間 西式房間(約10.5張塌塌米)

西式房間 能在西式房間(約10.5張塌塌米)中間準備好,也能靈活和家族構成的變化對應。

收納 嵌入式衣櫃

收納 西式房間(約10.5張塌塌米)裡面的收納。能無浪費而靈活運用樓梯上的空白。

陽台 光照好的朝南的陽台

風景 沒有阻礙視界的東西,并且是開放性的景致。

風景 春天,能觀察成排的櫻樹。

門口

門口

收納 門口旁邊泥地收納

門口

外觀

外觀

外觀 有便於洗車的室外栓

停車場 約8.1m有前面道路,把車停好輕鬆。

能停2台(出自尺寸的限制有)
> 用語集

用語集

推薦重點

查看評論 收起

周邊地圖

地址 兵庫縣神戶市垂水區南多聞台8丁目 > GoogleMap


諮詢
諮詢
諮詢
諮詢