109,800,000 日圓
小學 明正小學 1180m
中學 光陽中學 1050m
公園 Lake Town美季之杜公園 40m
醫院 越谷湖城內科 800m
其他便利設施1 セブンイレブン越谷レイクタウン9丁目店 270m
其他便利設施2 kezudenki越谷湖城商店 350m
其他便利設施3 AEON Lake Town kaze 750m
-房屋的推薦重點-
▼位置
・JR武藏野線"越谷湖城"車站步行9分鐘
▼建築物的特徴
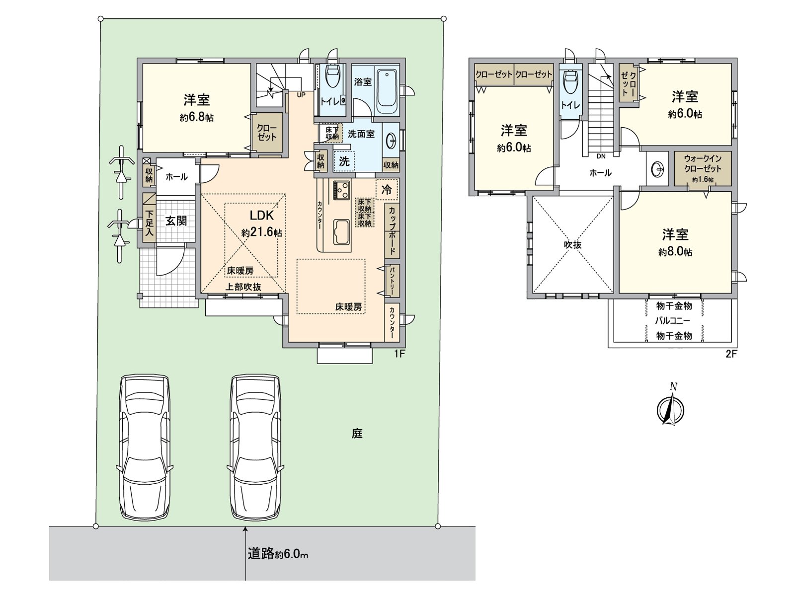
・PANAHOME株式會社施工,輕量鐵骨造的4LDK
・光照在南側約6.0m道路良好
・在院子,能享受園藝以及乙烯樹脂遊泳池
・全部電化住宅
▼房間的特徴
・超過6.0張塌塌米全居室,約21.6張塌塌米LDK的容易使用的房型
・有通頂設計的開放感覺溢出來的LDK
・在全居室存儲空間有
▼設備
・地板下邊收納,嵌入式衣櫃收納豐富
・也便於雨的日的洗衣的浴室烘乾機
・對LDK部分,冬天舒適的地板暖氣
・保護舒適的生活的電動鐵卷門(1樓窗)
・汽車空間2台分鐘(車型限制有)
■ 在找想要的家方面給予幫助的━━━━━・・・
房屋的詳細、需討論是如感興趣,歡迎請隨時聯繫我們。
查看評論 收起