練馬區關町北4丁目新建透天房

透天房

外觀 [當地外觀]到西武新宿線"武藏關"車站步行7分鐘

外觀 [當地外觀]建築面積120.89平方公尺

外觀 [當地外觀]用地面積189.54平方公尺

其他當地 近鄰有超市以及便利店,藥妝店,購物便利

其他當地 2台汽車空間(出自車型的)

其他當地 中小學不久容易做育兒的環境

含有前面道路的外觀 [前面道路]第一類低層住宅專用區的閒靜的住宅區

其他當地 [前面道路]如果使用公共汽車的話,也能使用JR中央線"吉祥寺"車站

其他當地 [前面道路]如果使用公共汽車的話,也能使用西武池袋線"保谷"車站

Santoku關町商店(約500m) 步行7分鐘。因為能在HP確認數碼的傳單不放過劃算的商品所以而好像可以購物。/營業時間從9:30到0:00(星期天9:00~)。

新鮮市場akidai關町總店(約770m) 步行10分鐘。

7-Eleven練馬關町北2丁目商店(約370m) 步行5分鐘的香煙以及酒,Seven咖啡廳等的原創的商品被辦理。能使用手機電池服務以及店鋪拘留服務。

COCOKARA FINE關町商店(約400m) 步行5分鐘。在突然的感覺不良以及傷的情況下,在馬上能去購物的距離有。信用卡或者條形碼,可以用各種不用現款結算支付。/營業時間從9:30到21:30。

武藏關站前郵局(約540m) 步行7分鐘的郵件、儲蓄、保險的窗口和ATM設置有。/平日窗口營業時間(郵件)從9:00到17:00(儲蓄/保險)~16:00。ATM營業時間(平日)從9:00到19:00(星期六、星期天、假日)~17:

練馬區立關町北小學(約750m) 步行10分鐘。許多優雅""笑臉溢出來,被學校標語登載的小學。在HP,能有照片的看每天的上課風景的"學校日記"被更新。

練馬區立關中學(約700m) 步行9分鐘。是不對變得忙的中學生活用學習和興趣活動小組的兩立有影響的上學距離。學習或者傳統事情能有效活用回家之後的時間。能在HP確認教育目標以及學校dayorinadoo。

練馬區立武藏關公園(關公園)(約280m) 步行4分鐘。

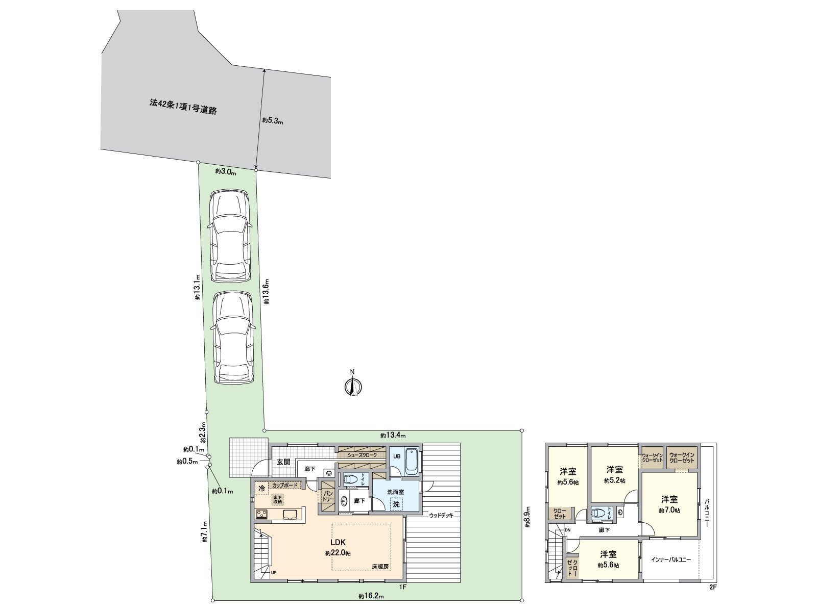
[平面圖]從屬於在約22張塌塌米LDK繼續的木材甲板并且汽車空間2台分鐘
> 用語集

用語集

推薦重點

查看評論 收起

周邊地圖

地址 東京都練馬區關町北4丁目 > GoogleMap


諮詢
諮詢
諮詢
諮詢